北京
【切换】
整屋案例
家居美图
实景案例
装修现场
装修攻略
无数据
搜索
010-84934479
扫码快速拨号 >
扫码快速拨号
首页
效果图
设计师
装修现场
装修攻略
品质保障
了解业之峰
当前位置:
首页
装修图库
案例相册
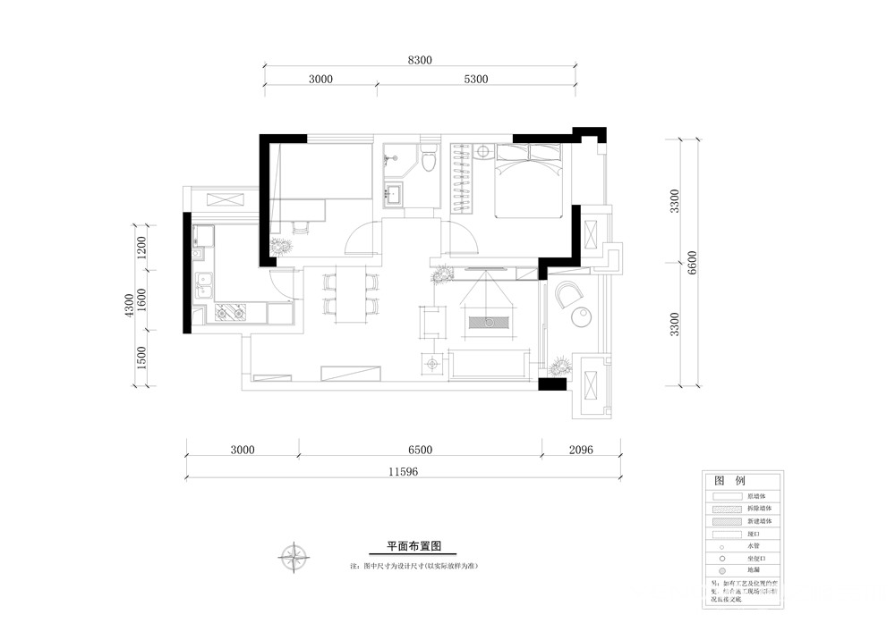
70㎡二居混搭风格紫御熙庭
发布时间: 2018年09月20日
小区:紫御熙庭
面积:70㎡
户型:二居
风格:混搭风格
设计说明
户型图
厨房
卫生间
客厅
餐厅
设计说明
户型图
厨房
卫生间
客厅
餐厅
本案设计师
业之峰专业设计师
免费咨询
我家装成这样多少钱?
㎡
获取报价
相关案例推荐
85㎡二居混搭风格东盛花园
查看详情
115㎡二居混搭风格环球中心
查看详情
90㎡二居混搭风格巴黎花园
查看详情
85㎡二居混搭风格黄山大家
查看详情
80㎡二居混搭风格自建房
查看详情
85㎡二居混搭风格松江城
查看详情
89㎡二居混搭风格建业桂园
查看详情
80㎡二居混搭风格中福朗诗翠微澜阁
查看详情
90㎡二居混搭风格中海南开郡
查看详情
95㎡二居混搭风格阳光城
查看详情
98㎡二居混搭风格清华忆江南
查看详情
84㎡二居混搭风格振跃尚府
查看详情
124㎡二居混搭风格梅花城
查看详情
96㎡二居混搭风格雁滩家园
查看详情
98㎡二居混搭风格翠屏国际城
查看详情
90㎡二居混搭风格西城芳洲
查看详情
89㎡二居混搭风格绿地国际城
查看详情
78㎡二居混搭风格尚品燕园
查看详情
80㎡二居混搭风格万科金色领域
查看详情
50㎡二居混搭风格戛纳湾滨江
查看详情
展开
报价计算器
免费量房
免费设计
回到顶部