160㎡三居简欧风格月明风清
发布时间:
2018年09月20日
小区:月明风清 面积:160㎡ 户型:三居 风格:简欧风格
设计说明
本案设计注重装饰效果,用室内陈设品来增强文脉特色,运用家具及陈设品来烘托室内环境氛围。简约欧式风格的装修更注重庄严肃静,优雅气质,能够将欧式风格与复古风格的奢华完美勾勒。
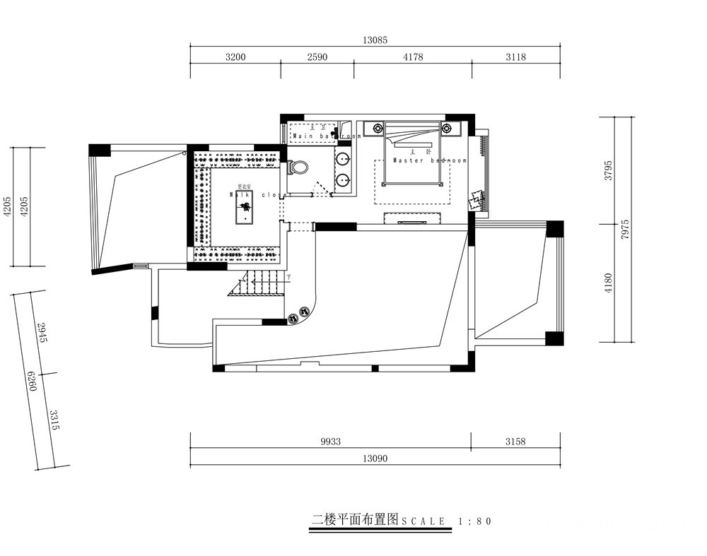
户型图

客厅




餐厅

本案设计注重装饰效果,用室内陈设品来增强文脉特色,运用家具及陈设品来烘托室内环境氛围。简约欧式风格的装修更注重庄严肃静,优雅气质,能够将欧式风格与复古风格的奢华完美勾勒。





