75㎡一居新中式风格绿地塞纳公馆
发布时间:
2018年09月20日
小区:绿地塞纳公馆 面积:75㎡ 户型:一居 风格:新中式风格
设计说明
此设计方案总能给人一种悠然淡定清新脱俗的感觉。家,似乎也在找寻这份宁静。整个空间巧妙的运用中式的的改良、个性的创意,打造出一个清新脱俗又舒适愉悦的中式禅意空间,让人回味无限。禅意的营造可以从色彩、装饰物等许多角度入手进行,浅灰色的墙面与深棕的家具形成明显的对比,透出浓浓的禅意美。卧室的风格简朴自然,大量自然材质的运用让家更有禅意。釉面砖的大面积使用,对于卫浴来说,除了舒适之外,还有美观整洁的作用,交沉郁的色泽搭配禅意风格。
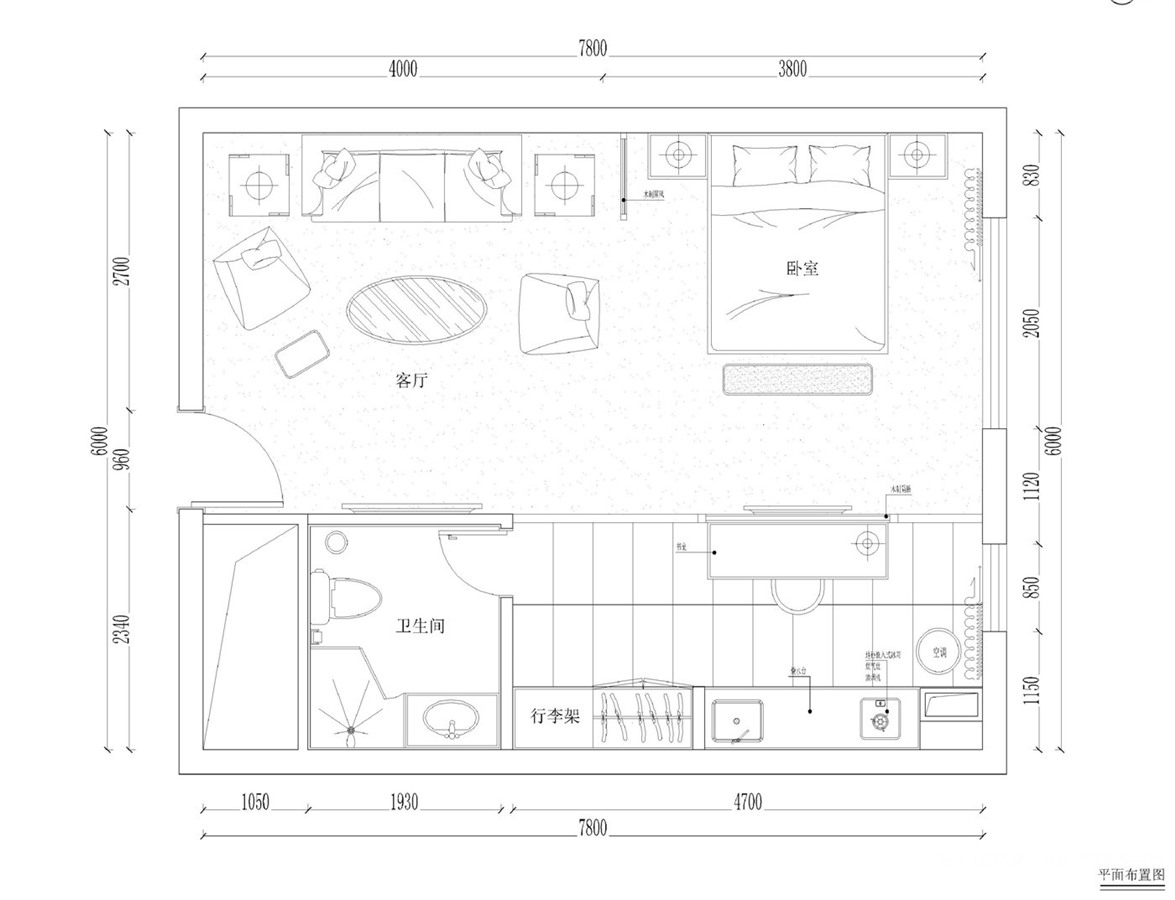
户型图

卧室


客厅


卫生间

厨房





京公安网备11010502040911