300㎡别墅现代简约风格佳兆业水岸新都
发布时间:
2018年08月29日
小区:佳兆业水岸新都 面积:300㎡ 户型:别墅 风格:现代简约风格
设计说明
本案的设计风格为简约风格,但是简约并不是简单,简洁是优良品质经不断组合并筛选出来的精华,是将物体形态的通俗表象,提升凝练为一种高度浓缩、高度概括的抽象形式。简练出的新概念,摒弃传统的陈俗与浮华,它多半运用新材料、新技术、新手法,与人们的新思想、新观念相统一,达到以人为本的境界。简洁也不是缺乏设计要素,它是一种更高层次的创作境界。在设计方面,它体现在不是放弃原有建筑空间的规矩和朴实,去对建筑载体进行任意装饰。而是在设计上更加强调功能,强调结构和形式的完整,更追求材料、技术、空间的表现深度与精确。
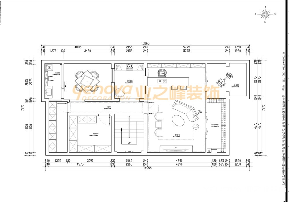
户型图

卧室

休闲区


客厅




餐厅





京公安网备11010502040911