135㎡三居简欧风格南昌莱蒙都会
发布时间:
2018年08月28日
小区:南昌莱蒙都会 面积:135㎡ 户型:三居 风格:简欧风格
设计说明
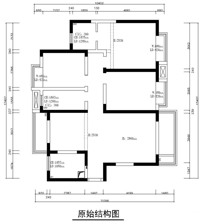
整个户型南北通透,户型方正,房屋的整体拆改墙不大。
针对方正户型主要的设计放在房屋内,在设计中我们都知道主要分两个大区,一个是动区,另一个就是静区。在客厅进入睡眠区的位置做了一个垭口,起到动线分离的作用,整个房屋有一个明确的功能分区。让业主在后期的使用中更舒适。
观看整个房屋平面,过道比较长,通过功能去的分工,同时解决了整个房屋过道比较狭长的问题。在主卧的设计中,为了更贴近业主的要求,把主卧的房门做了改动,这样改动的第一个优点是扩大主卧的使用面积,同时也起到一个反冲作用,不会一开门就看到卧床,增加安全感,在床位设计了一个1.8米的书桌,因为业主两个人有经常带工作的回家的习惯,这样设计同时又能保证主卧两面的空间不显得急促。同时还能保证有独立的衣帽间,储物空间能得到充分的保证。
户型图

客厅




餐厅





京公安网备11010502040911