101㎡三居现代简约风格莱蒙都会
发布时间:
2018年08月26日
小区:莱蒙都会 面积:101㎡ 户型:三居 风格:现代简约风格
设计说明
设计说明:本案为两房两厅户型,户型比较规整。本案房所用后期带孩子读书,所以将原有的三房改为两房 ,风格考虑为简中风格 ,后期改造后各区域都比较宽敞复合业主的需求。
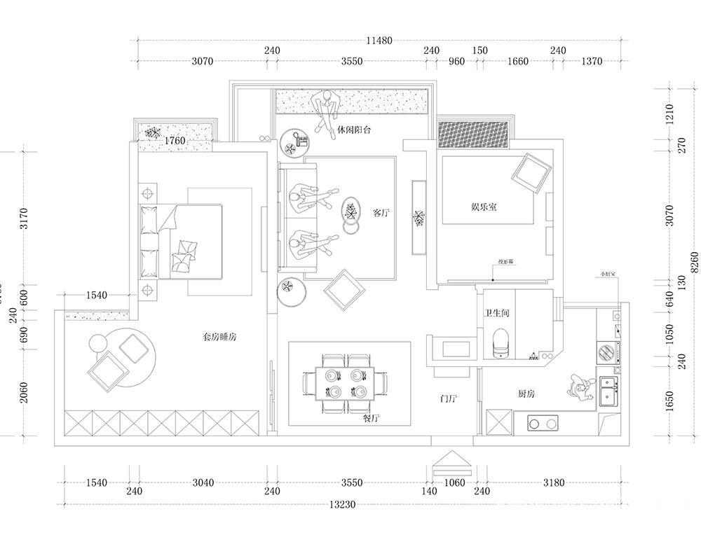
户型图

客厅





卧室

设计说明:本案为两房两厅户型,户型比较规整。本案房所用后期带孩子读书,所以将原有的三房改为两房 ,风格考虑为简中风格 ,后期改造后各区域都比较宽敞复合业主的需求。






