北京
【切换】
整屋案例
家居美图
实景案例
装修现场
装修攻略
无数据
搜索
010-84934479
扫码快速拨号 >
扫码快速拨号
首页
效果图
设计师
装修现场
装修攻略
品质保障
了解业之峰
当前位置:
首页
装修图库
案例相册
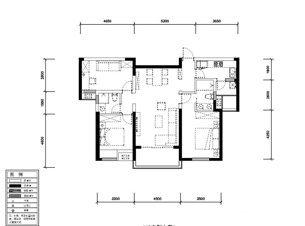
130㎡三居欧式风格中海国际社区
发布时间: 2018年08月22日
小区:中海国际社区
面积:130㎡
户型:三居
风格:欧式风格
设计说明
这是一个
3口之家,所以需要2个房间,男主人因工作原因,希望有一个书房女主人希望有尽可能多的储藏空间。
户型图
卧室
客厅
设计说明
户型图
卧室
客厅
本案设计师
邓佩
主任设计师
免费咨询
我家装成这样多少钱?
㎡
获取报价
相关案例推荐
110㎡三居欧式风格新兴港湾
查看详情
235㎡三居欧式风格曲江中海御湖1号
查看详情
140㎡三居欧式风格银基誉府
查看详情
179㎡三居欧式风格天汇尚苑
查看详情
128㎡三居欧式风格金都九珑宸
查看详情
159㎡三居欧式风格世茂锦绣长江
查看详情
101㎡三居欧式风格恒大御景半岛
查看详情
202㎡三居欧式风格青岛星河湾
查看详情
228㎡三居欧式风格麦岛金岸
查看详情
100㎡三居欧式风格爱家E都广场
查看详情
110㎡三居欧式风格远洋世界
查看详情
117㎡三居欧式风格桃李芳菲
查看详情
81㎡三居欧式风格公元大观
查看详情
128㎡三居欧式风格萨尔斯堡
查看详情
150㎡三居欧式风格津滨藏锦
查看详情
120㎡三居欧式风格金辉·公园里
查看详情
131㎡三居欧式风格绿城海棠印月
查看详情
123㎡三居欧式风格泰达御海
查看详情
150㎡三居欧式风格明辉豪庭
查看详情
180㎡三居欧式风格融创中心
查看详情
展开
报价计算器
免费量房
免费设计
回到顶部