270㎡别墅现代简约风格望江橡树林
发布时间:
2018年08月22日
小区:望江橡树林 面积:270㎡ 户型:别墅 风格:现代简约风格
设计说明
这是一个三口之家,父母没有住在一起,不过会经常来看孙子,所以需要一个客房,男主人需要一个独立的办公区域,女主人需要一个大型的衣帽间,一共需要3个房间。
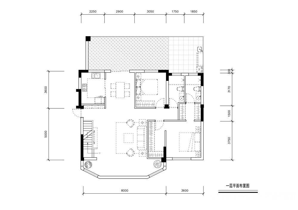
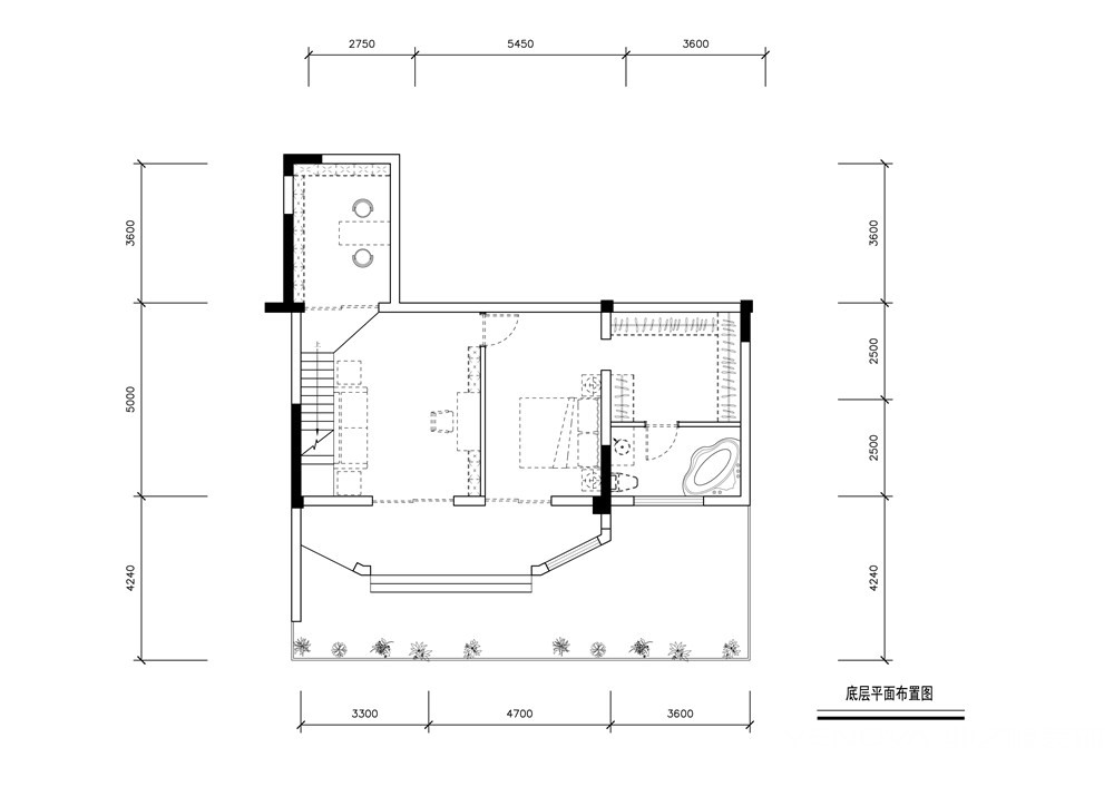
户型图

卧室

客厅




这是一个三口之家,父母没有住在一起,不过会经常来看孙子,所以需要一个客房,男主人需要一个独立的办公区域,女主人需要一个大型的衣帽间,一共需要3个房间。





