120㎡三居新中式风格边城香格里
发布时间:
2018年08月22日
小区:边城香格里 面积:120㎡ 户型:三居 风格:新中式风格
设计说明
这是一个四口之家、除了男主人女主人以外,还有两个小孩,一个男孩,一个女孩,所以需要3个房间,女主人希望有多的储物空间。
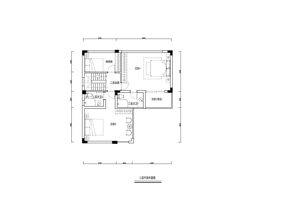
户型图

卧室



客厅




休闲区


卫生间

餐厅

这是一个四口之家、除了男主人女主人以外,还有两个小孩,一个男孩,一个女孩,所以需要3个房间,女主人希望有多的储物空间。











