265㎡一居新中式风格南部幸福春天
发布时间:
2018年08月22日
小区:南部幸福春天 面积:265㎡ 户型:一居 风格:新中式风格
设计说明
禅意空间的设计遵循禅宗思想,追求简索、纯净、淡然的空间美感。简洁,剔除多余的,没有必要的装饰,干净利落,
整齐统一,通过采用留白的手法,留给人们无限的禅悟与想象空间,禅意空间能够为人们带来一种淡然清雅、宁静超脱、
启迪人生智慧的空间环境,对人们的精神具有强大的感染力。整个空间在色彩上主要以白色、灰色、米色等中性色作为主色调,
同时为了保持在视觉上的连续性,墙壁、家具和地板之间的色彩变化不多,使过渡自然。在整个空间中,木质元素运用
最多,并且保持原木的素色和清晰的纹理、随意的形态,无不体现出自然的本色之美。
简约、线条清晰是禅意家居设计的特点,因此墙面的装修也尽量做到了简约,没有过多的挂画或者装饰,只在一些特殊的
地方用水墨画等元素作为背景墙的装饰。另外盆栽树或者玻璃容器里的植物也是禅意家居空间里常见的装饰选择。同时石头、
竹子、木材、细石这些组合会散发出朴素的气息,给人带来朴素的感觉。
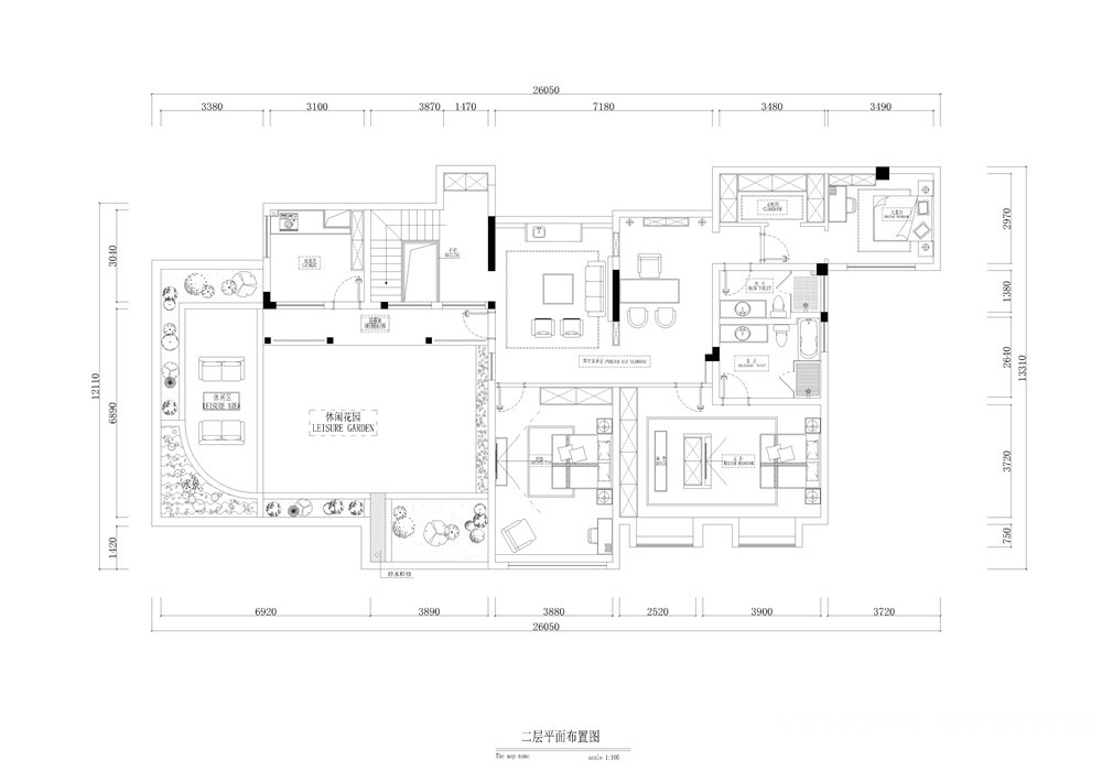
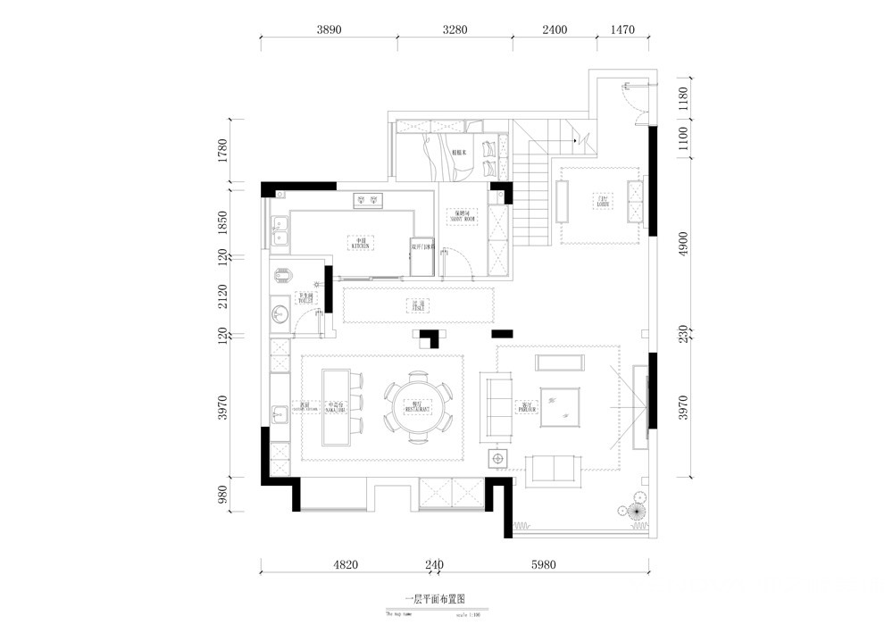
户型图

客厅



卧室



休闲区





京公安网备11010502040911