215㎡一居现代简约风格彩叠园
发布时间:
2018年08月22日
小区:彩叠园 面积:215㎡ 户型:一居 风格:现代简约风格
设计说明
美式简约装修风格,整体给人一种简约大气的气息,没有反复的空间布局,每处都格外的干净利落,而且现代实用。无论是房顶的吊灯,还是脚下的地板,没有琐碎多余的设计,表面光滑柔和,让人感觉温暖而舒适。美式简约装修风格二:色彩搭配美式简约装修风格的色彩单配,整体给人感觉明亮而又恬静,空间的色彩的调试没有突兀的部分,色彩单一。比如空间和地面的对比,墙面和地板的色彩对比。色彩的选择也是挑选的简单、素雅为主的颜色,整体看起来就会温馨。在浅色整体主调下,我们可以在一些的装饰色彩可以用一些深色系列的,但整体色系好搭配感强。美式简约装修风格三:设计整体设计上给人带来清爽明快之感,宽敞的空间布局让人更加舒畅,单一的色调让人就看不腻。空间布局、色彩用用、材质的选择,都突出了简约又大气的风格。美式简约装修风格四:特点美式简约装修风格中,客厅采用暖色为主色调。充满美式元素的客厅吊顶让空间显得更加华贵。玄关处,材料的选择也多是光挺、华丽的材料。门边采用的石料具有质朴的纹理,这样创造了自然、简谱的视觉效果。
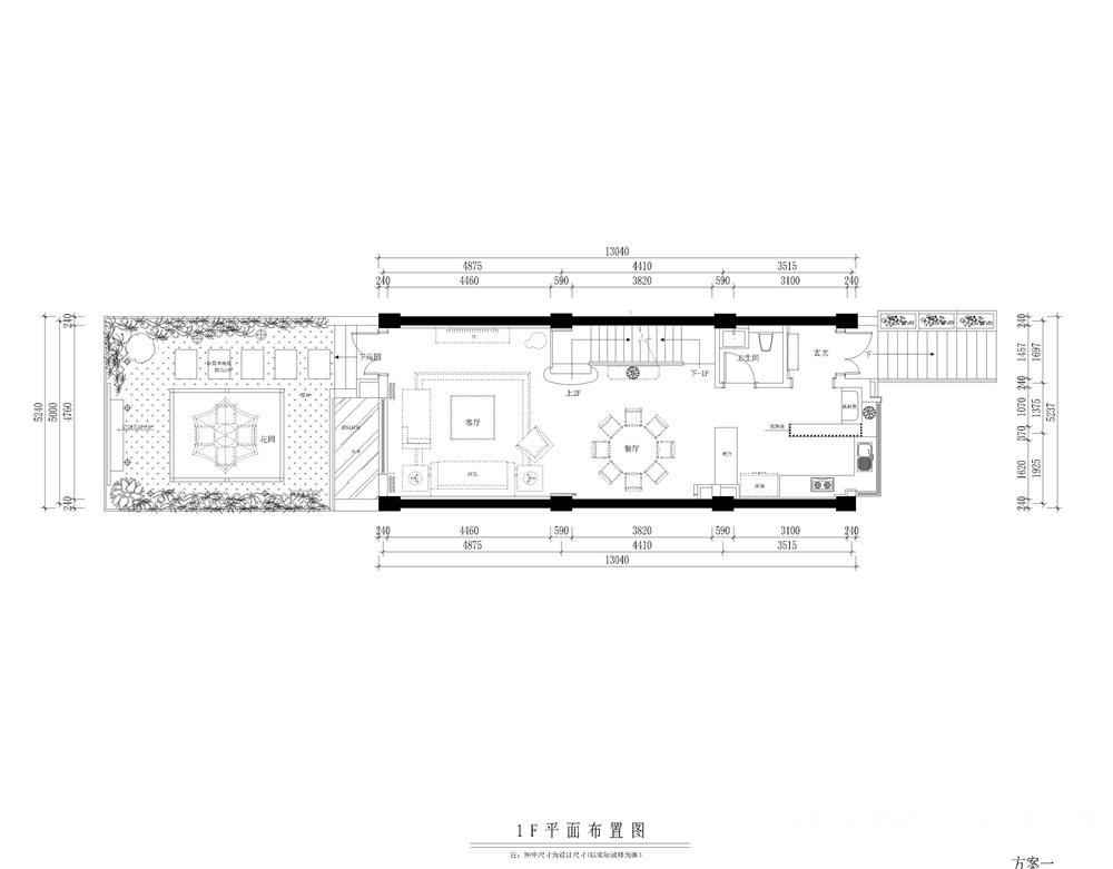
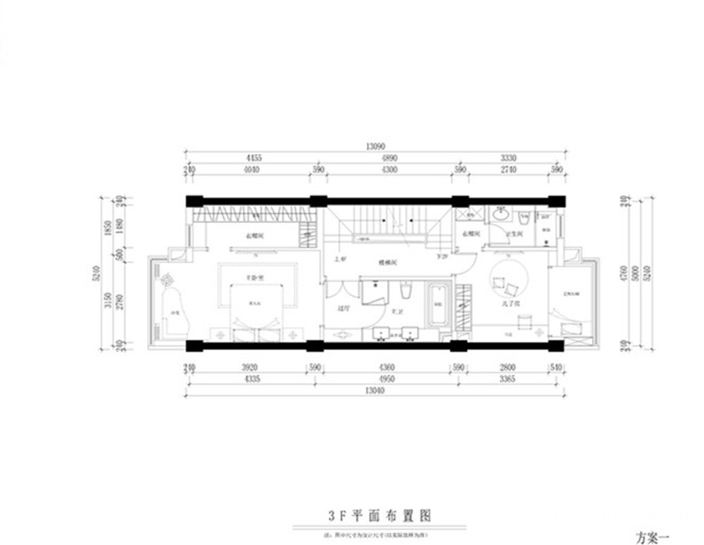
户型图

客厅








书房

卧室





京公安网备11010502040911