158㎡四居美式风格博瑞都市
发布时间:
2018年08月22日
小区:博瑞都市 面积:158㎡ 户型:四居 风格:美式风格
设计说明
美式简约装修风格,整体给人一种简约大气的气息,没有反复的空间布局,每处都格外的干净利落,而且现代实用。无论是房顶的吊灯,还是脚下的地板,没有琐碎多余的设计,表面光滑柔和,让人感觉温暖而舒适。
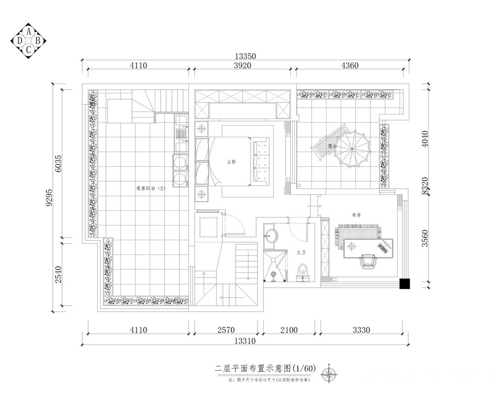
户型图

客厅



卧室

儿童房

美式简约装修风格,整体给人一种简约大气的气息,没有反复的空间布局,每处都格外的干净利落,而且现代实用。无论是房顶的吊灯,还是脚下的地板,没有琐碎多余的设计,表面光滑柔和,让人感觉温暖而舒适。





