270㎡四居美式风格长城半岛城邦
发布时间:
2018年08月22日
小区:长城半岛城邦 面积:270㎡ 户型:四居 风格:美式风格
设计说明
大多采用实木家具,崇尚古典韵味,造型较为随意,线条流畅,主要考虑女主人的实用性和舒适性。这样的设计给人的感觉是豪华大气,却又拥有着古典气质和浪漫气息
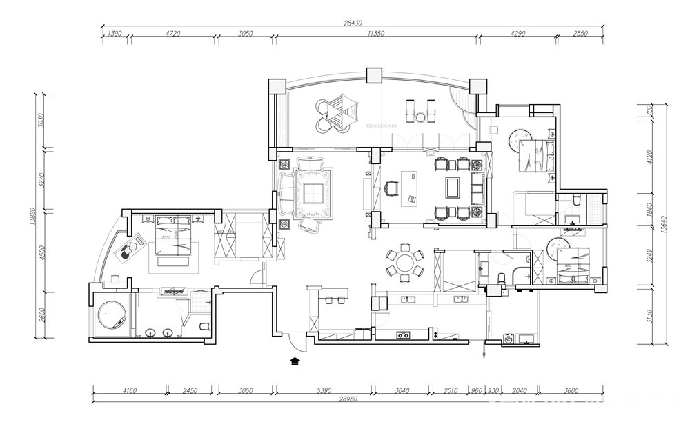
户型图

客厅



卧室

大多采用实木家具,崇尚古典韵味,造型较为随意,线条流畅,主要考虑女主人的实用性和舒适性。这样的设计给人的感觉是豪华大气,却又拥有着古典气质和浪漫气息




