135㎡平层简欧风格绅园
发布时间:
2018年08月12日
小区:绅园 面积:135㎡ 户型:平层 风格:简欧风格
设计说明
简欧风格应用于“二手房改造”对于许多人来讲是件比较头痛、麻烦的事,因为它涉及的问题比新房要多,改动起来就要脱胎换骨,尤其重要的是隐蔽工程和墙体改动后的处理,但是在设计时考虑全面、合理,就能成功的旧貌换新颜。
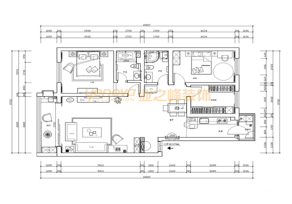
户型图

客厅



餐厅

卧室

简欧风格应用于“二手房改造”对于许多人来讲是件比较头痛、麻烦的事,因为它涉及的问题比新房要多,改动起来就要脱胎换骨,尤其重要的是隐蔽工程和墙体改动后的处理,但是在设计时考虑全面、合理,就能成功的旧貌换新颜。





