180㎡五居新中式风格世贸锦绣长江
发布时间:
2018年08月05日
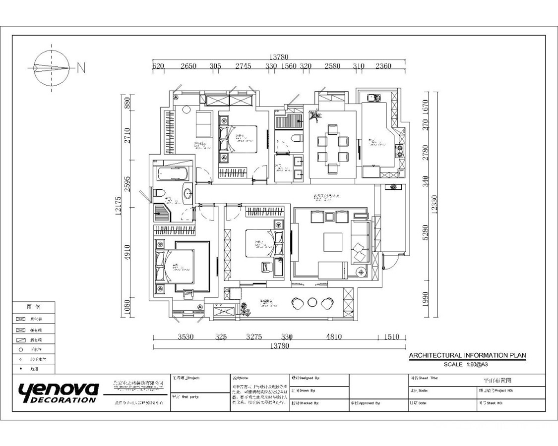
小区:世贸锦绣长江 面积:180㎡ 户型:五居 风格:新中式风格
设计说明
功能与形式是组成舒适空间的必要条件,无论大空间、小空间,好的功能设计占据了“舒适空间”绝大部分比例。
本案例户型为全南户型,当第一次跟业主沟通这个空间的时候,就指出了卫生间的空间不足,厨房与卫生间通风问题。此户型设计要解决的也就是厨房、卫生间、餐厅三个区域的功能划分。这个空间是一个四的户型,根据人口的构成我们调整成了3+1,一个是弹性的,主卧、小孩房,客卧,衣帽间,做到干湿分区,厨房外的生活阳台扩到厨房里增加厨房使用面积。客厅电视柜采用了嵌通过吊顶统一高度,提高房间门扇的处理方式减少硬装的刻意造型,形成对称形式的客厅背景墙。整套案例设计的中心围绕的是功能完整,空间放大,在色彩方面没有使用传统风格的深色调,把家具作为各个空间的重心,搭配浅色的墙面壁纸能够放大空间,同时在软装饰品上面用同样的颜色去呼应协调背景色,简单的搭配往往在协调的同时能够增加空间质感。空间须适度留白,结合并运用壁纸的柔和、实木的温润、软装的明艳,平衡地营造出以人为本的居住空间。
户型图

卧室

客厅



休闲区

儿童房





京公安网备11010502040911