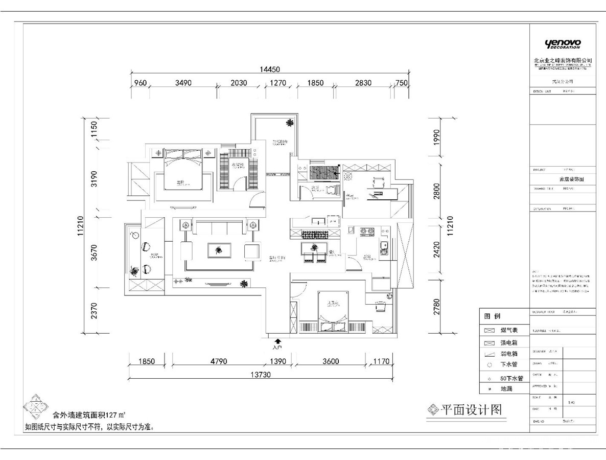
149㎡三居现代简约风格世茂锦绣长江
发布时间:
2018年08月04日
小区:世茂锦绣长江 面积:149㎡ 户型:三居 风格:现代简约风格
设计说明
本方案主要以现代简约风格为主打,给人以轻松,自由的环境,让你适度放松一天工作下来所产生的视觉疲劳。整个布局比较干净,整洁,大方,因而更亲近自然,随意的居室环境。当然的功能分区也是明朗的,强调了每个部分的功能性。线条简约并且流畅,色彩方面配色大胆,采用了玻璃,墙纸,条纹与曲线墙纸相呼应。现代,时尚,大气的具体体现。书房增加了衣柜,进而增大了储藏空间,让居住者在紧张的工作加班后也能享受下午和夜晚的惬意。对于目前一个生活节奏比较快的城市,居住者更需要的一种适度的享受,生活与享受也是必须相结合的一种精神状态。
简约起源于现代派的极简主义。简约风格就是简单而有品位· 这种品位体现在设计上的细节的把握, 每一个细小的局部和装饰,都要深思熟虑· 在施工上更要求精工细作· 是一种不容易达到的效果。以简洁的表现形式来满足人们对空间环境那种感性的、本能的和理性的需求,这是当今国际社会流行的设计风格——简洁明快的简约主义。简约主义是由上个世纪80年代中期对复古风潮的叛逆和极简美学的基础上发展起来的,90年代初期,开始融入室内设计领域。
简洁、实用、省钱,是现代简约风格的基本特点。这是因为人们装修时总希望在经济、实用、舒适的同时,体现一定的文化品味。而简约风格不仅注重居室的实用性,而且还体现出了工业化社会生活的精致与个性,符合现代人的生活品位。
装饰要素:金属材料、玻璃+色彩+线条简洁的家具、简洁大方的装饰造型、时尚的软装饰。
客厅














京公安网备11010502040911