90㎡复式美式风格乐活世纪公园城
发布时间:
2018年07月31日
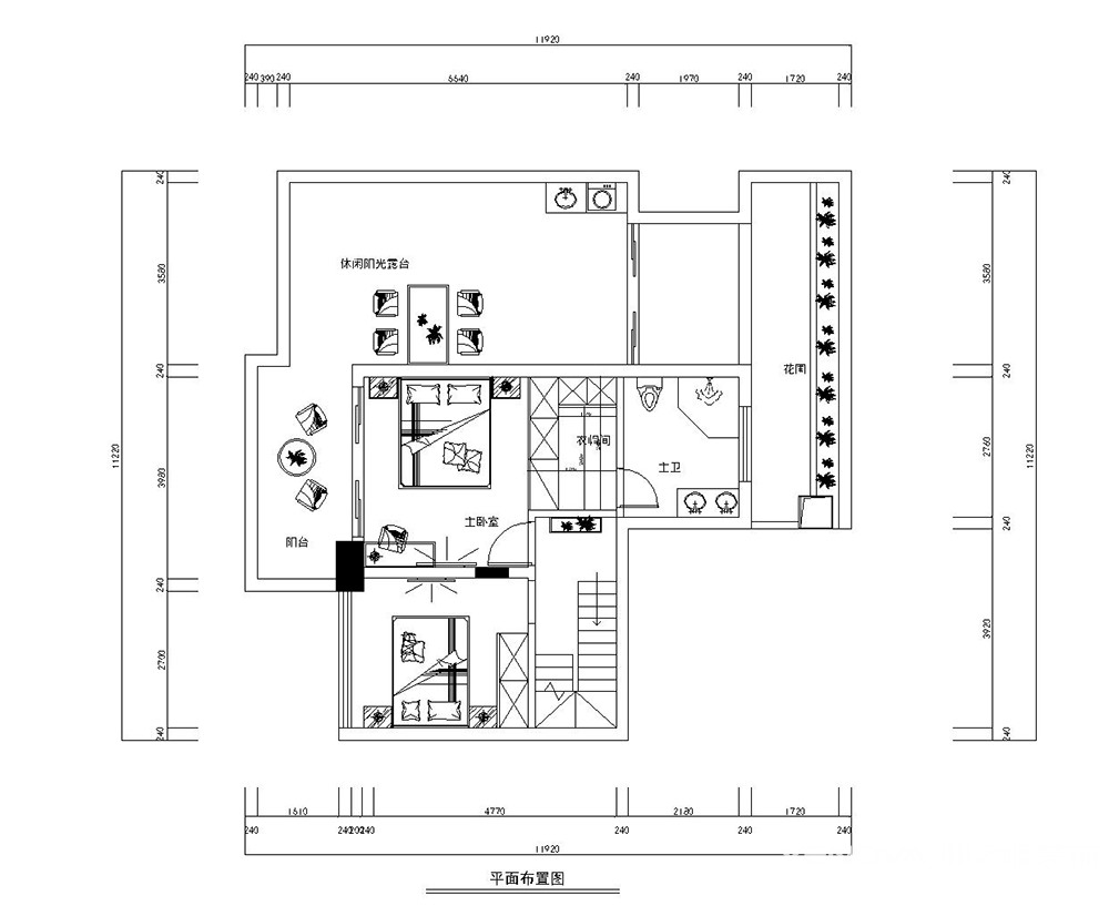
小区:乐活世纪公园城 面积:90㎡ 户型:复式 风格:美式风格
设计说明
装修热线:0791-86296016
业主是个90后年轻夫妇,在二胎的考虑上费劲了心思,儿童房也是纠结了很久的颜色,最后定下温暖的颜色的,和简单朴素有别有韵味的美式乡村风格。
客厅






装修热线:0791-86296016
业主是个90后年轻夫妇,在二胎的考虑上费劲了心思,儿童房也是纠结了很久的颜色,最后定下温暖的颜色的,和简单朴素有别有韵味的美式乡村风格。





