480㎡别墅混搭风格颐和天成
发布时间:
2018年07月22日
小区:颐和天成 面积:480㎡ 户型:别墅 风格:混搭风格
设计说明
本方案是现代简约混搭风格,简约不等于简单,它是既美观又实用的结合,室内多选用简洁的工业产品,家具和日用品多采用直线,玻璃金属也多被使用,营造出一个简单环境让自己的身心有一个放松的空间。
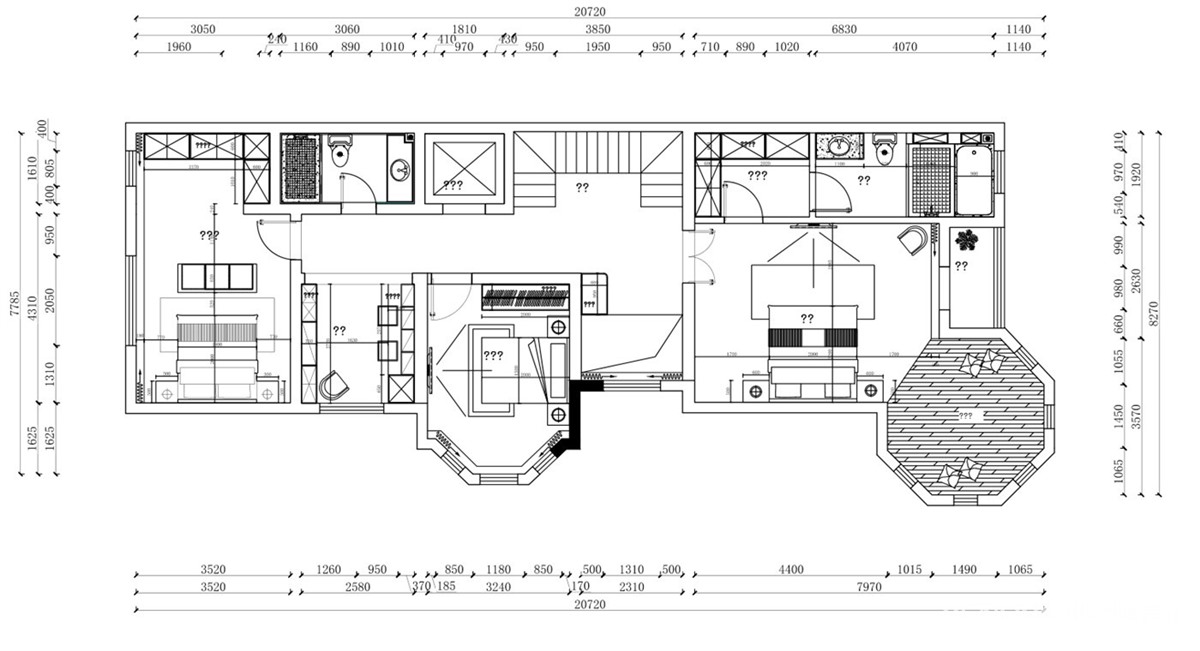
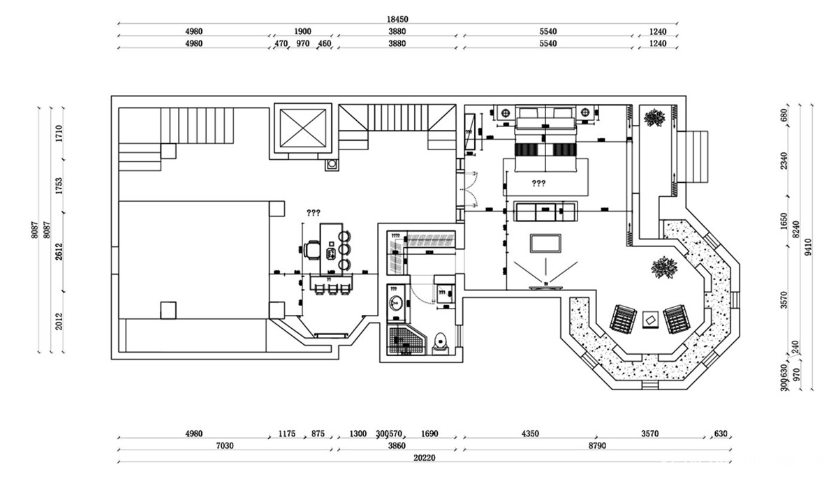
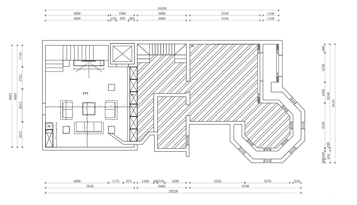
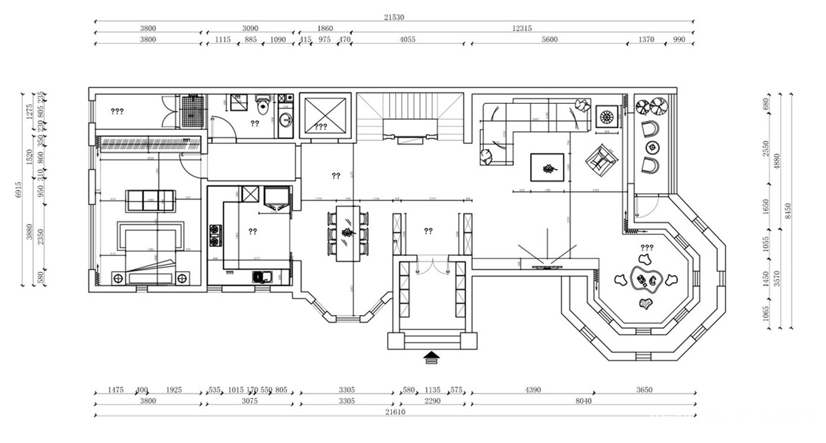
户型图

书房


客厅














卧室




餐厅



阳台

楼梯

休闲区





京公安网备11010502040911