160㎡三居现代简约风格嘉年华御府
发布时间:
2018年07月21日
小区:嘉年华御府 面积:160㎡ 户型:三居 风格:现代简约风格
设计说明
现代法式提炼法式文化精髓,简化法式元素符号,配合色彩变化、灯光效果及家具饰品,采用简洁的设计手法将法式的优雅浪漫和现代时尚相结合,营造出时尚、休闲、典雅的氛围。
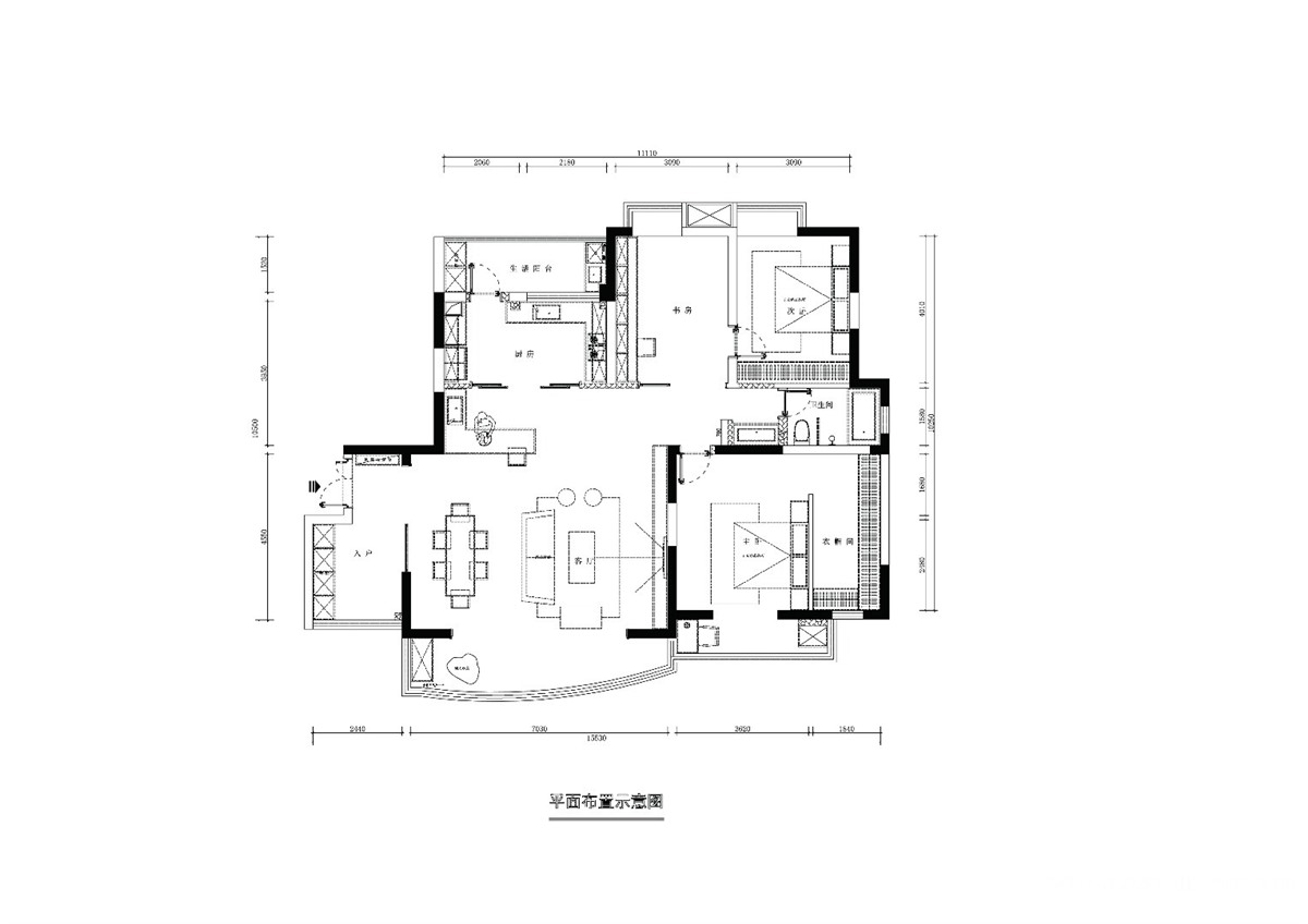
户型图

客厅


卧室


书房

现代法式提炼法式文化精髓,简化法式元素符号,配合色彩变化、灯光效果及家具饰品,采用简洁的设计手法将法式的优雅浪漫和现代时尚相结合,营造出时尚、休闲、典雅的氛围。





