143㎡四居现代简约风格龙湖紫宸
发布时间:
2018年07月21日
小区:龙湖紫宸 面积:143㎡ 户型:四居 风格:现代简约风格
设计说明
在设计上采用现代的设计方式来体现空间的简洁、大气的舒适风格。现代风格与传统风格相比,现代风格强调少即是多,舍弃不必要的装饰元素,用最直白的装饰语言体现空间和家具营造的氛围,追求时尚和现代的简洁造型、舒适轻松的色彩,赋予空间个性和宁静。在材料上,使用了自然石材与低调的木制材料,来表现它整个空间的美感,用绿植做点缀,使整个空间有了生机,让整个空间更加的清新自然。
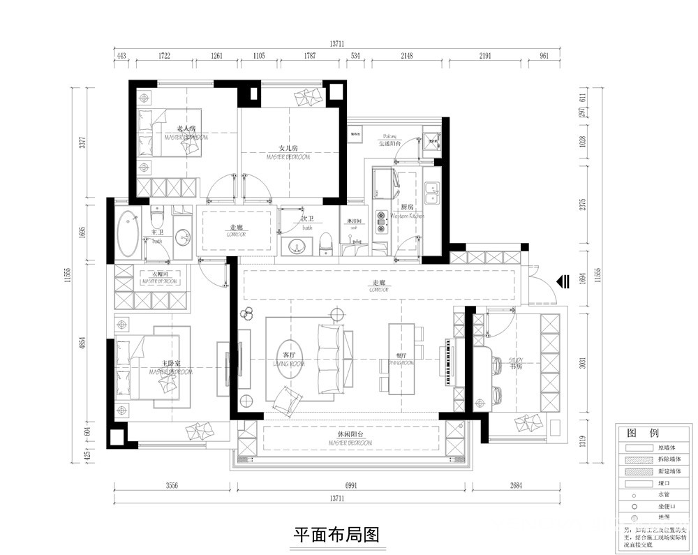
户型图

餐厅

卧室

客厅






京公安网备11010502040911