280㎡复式美式风格金辉·世界城
发布时间:
2018年06月20日
小区:金辉·世界城 面积:280㎡ 户型:复式 风格:美式风格
设计说明
本案装修风格为美式风格。其追求华丽、高雅的古典风格,居室色调主调为暖色,地面暖色系仿古砖菱形铺贴,彩色瓷砖做波打线,拉伸空间的同时,划分了各个功能区域,餐厅卡座的设计节省餐厅空间的同时让出过道动线区域,木质假梁的设计增加空间的复古感觉,与之实木家具相呼应搭配。过道造型垭口以及卫生间马赛克垭口打造空间亮点。卧室拱门设计与电视墙半穿凿电视墙相呼应,使空间更加柔和。
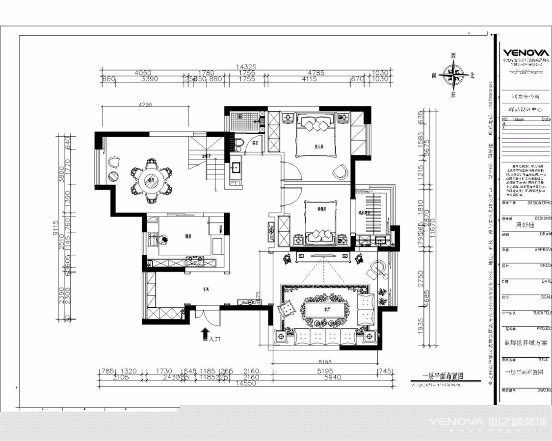
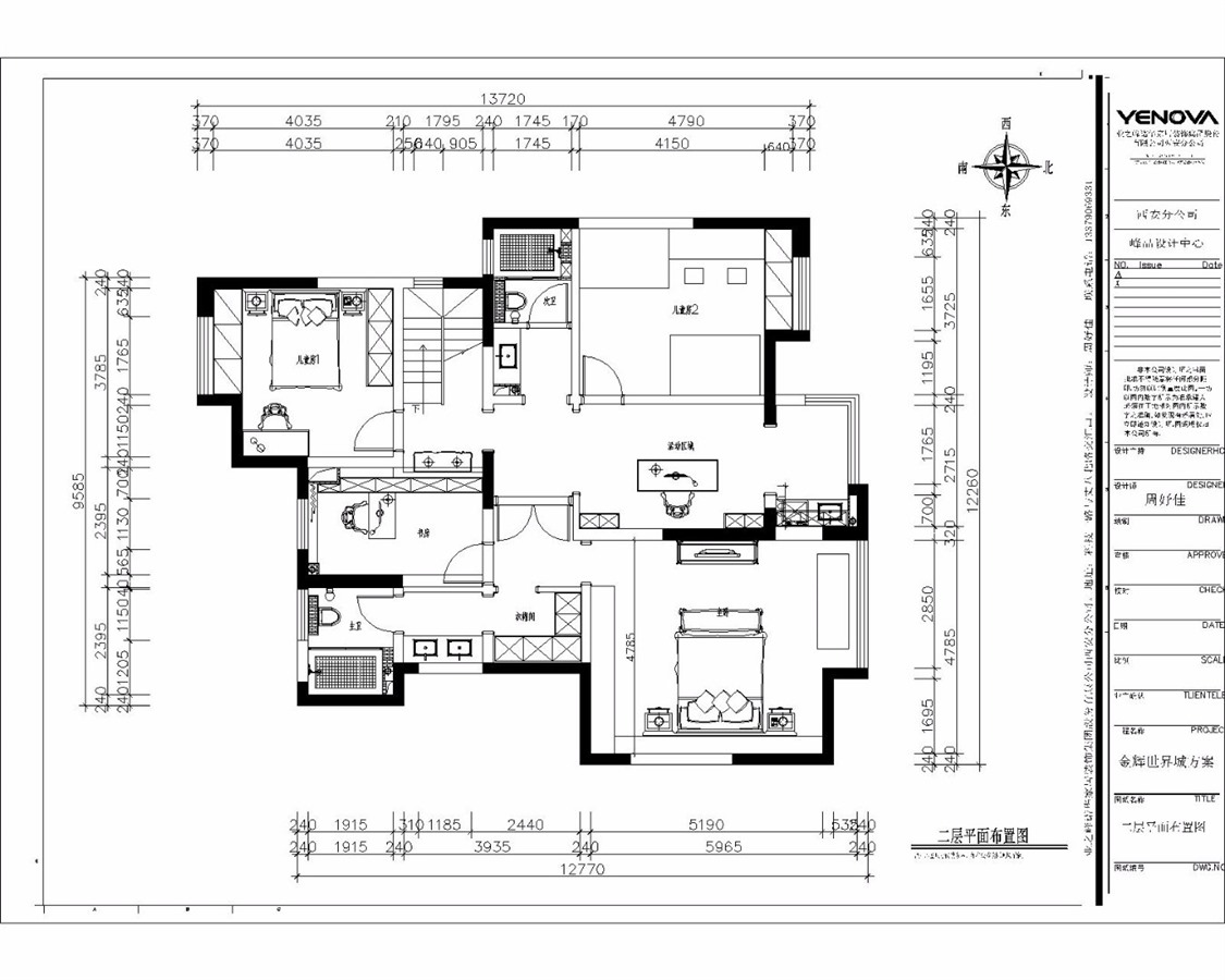
户型图

客厅





卧室


餐厅

休闲区





京公安网备11010502040911