141㎡三居简欧风格中建国熙台
发布时间:
2018年06月08日
小区:中建国熙台 面积:141㎡ 户型:三居 风格:简欧风格
设计说明
以简单、优雅、干净为主的欧式装修风格,当人置身其中时,多会感到幸福与温暖。在视觉上能轻松的识别屋内艺术带给人们在审美上的享受。在忙碌的相待社会,这种装修设计也让人们浮躁的内心在每天闲暇之余被家庭包尾与温暖。将浪漫的复古气息与美式风格完美结合,深入生活、反复思考、描绘出最丰富浪漫的空间效果。
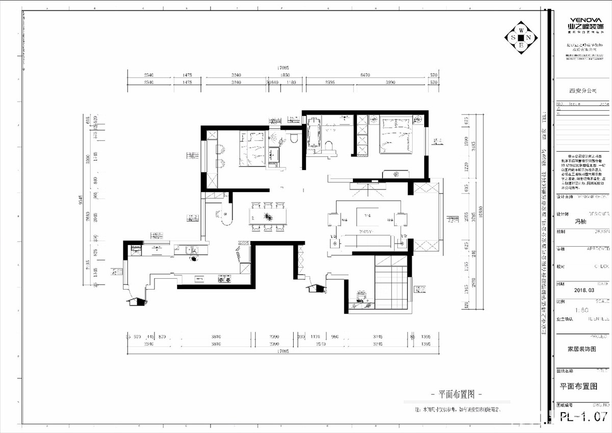
户型图

客厅




卧室

玄关

餐厅





京公安网备11010502040911