226㎡别墅欧式风格博轩园
发布时间:
2018年05月17日
小区:博轩园 面积:226㎡ 户型:别墅 风格:欧式风格
设计说明
简约欧式风格沿袭古典欧式风格的主元素,融入了现代的生活元素。欧式的居室有的不只是豪华大气,更多的是惬意和浪漫。通过完美的典线,精益求精的细节处理,带给家人数不尽的舒服触感。 简欧的装修要求只要有一些欧式装修的符号在里面就可以,因此,它其实是兼容性非常强的设计,如果把家具换掉,可以瞬间变成现代风格,也可以变成中式风格,总之能做到空间的千变万化。对于打算装修的朋友来说,简欧风格具有很强的实用性,也很适合中国人的居住习惯。其特点是顶、壁、门窗等装饰线角变化丰富,并融入了比如罗马柱、壁炉、卷草纹、线条优美的哑口和白色木格窗等非常有代表性的欧式元素。简欧式是别墅装修流行的一种风格,就是简约现代的欧式风格。 |
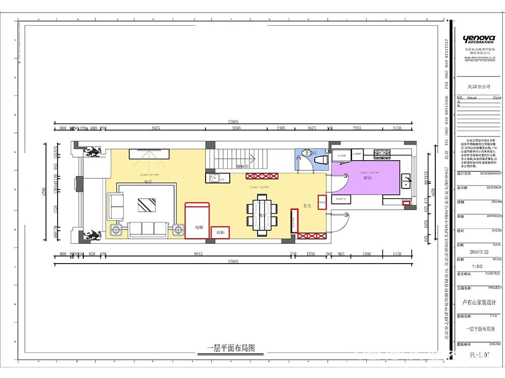
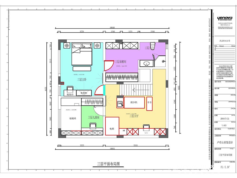
户型图

客厅





餐厅


书房

卧室







玄关





京公安网备11010502040911