470㎡别墅现代简约风格雍锦王府
发布时间:
2018年05月17日
小区:雍锦王府 面积:470㎡ 户型:别墅 风格:现代简约风格
设计说明
成都业之峰别墅设计案例| 设计师以简洁明快的现代简约设计风格为主调简约风格不仅注重居室的实用性,线条简约流畅,不单是对简约风格的遵循、餐桌需要餐桌布,而且还体现出了工业化社会生活的精致与个性、纯黄等高纯度色彩大量运用,也是现代风格家具的常见装饰手法,符合现代人的生活品位、玻璃灯+高纯度色彩+线条简洁的家具、不锈钢等新型材料作为辅材、装饰元素少,才能显示出美感,这是现代风格家具的特点。强调功能性设计,线条简约流畅,色彩对比强烈,这是现代风格家具的特点。此外,大量使用钢化玻璃、不锈钢等新型材料作为辅材,能给人带来前卫、不受拘束的感觉。由于线条简单、装饰元素少,现代风格家具需要完美的软装配合,才能显示出美感.
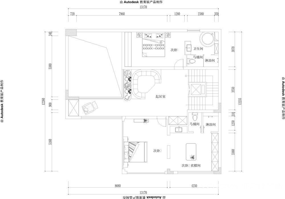
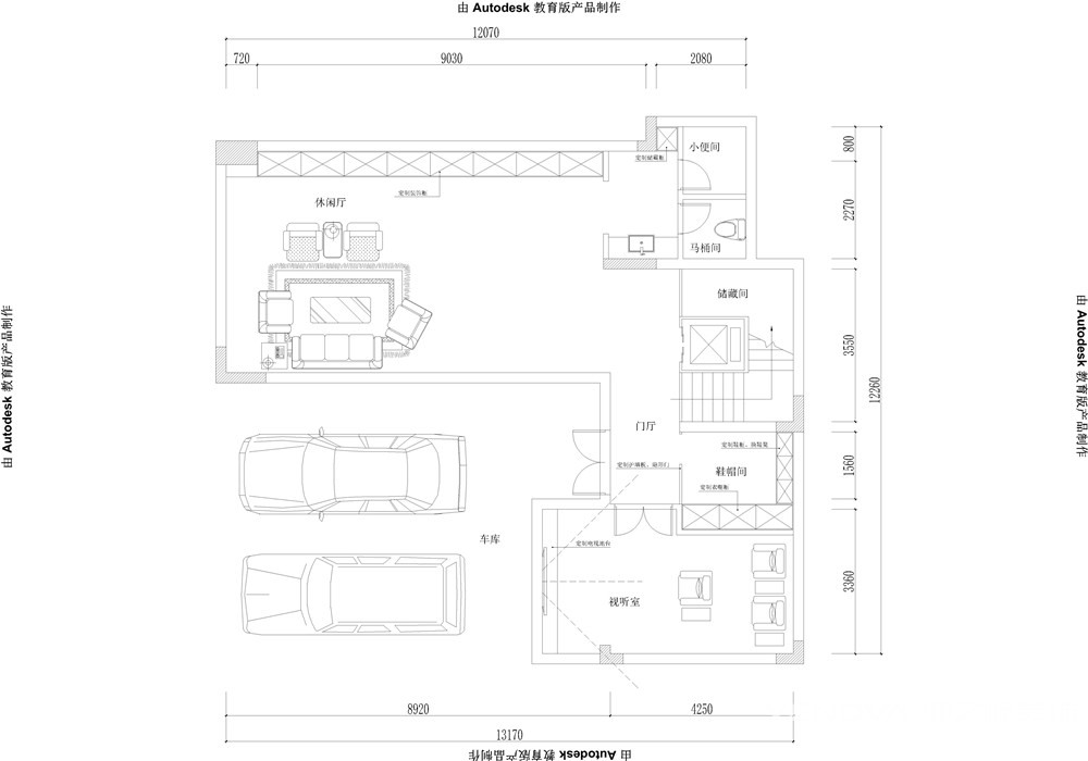
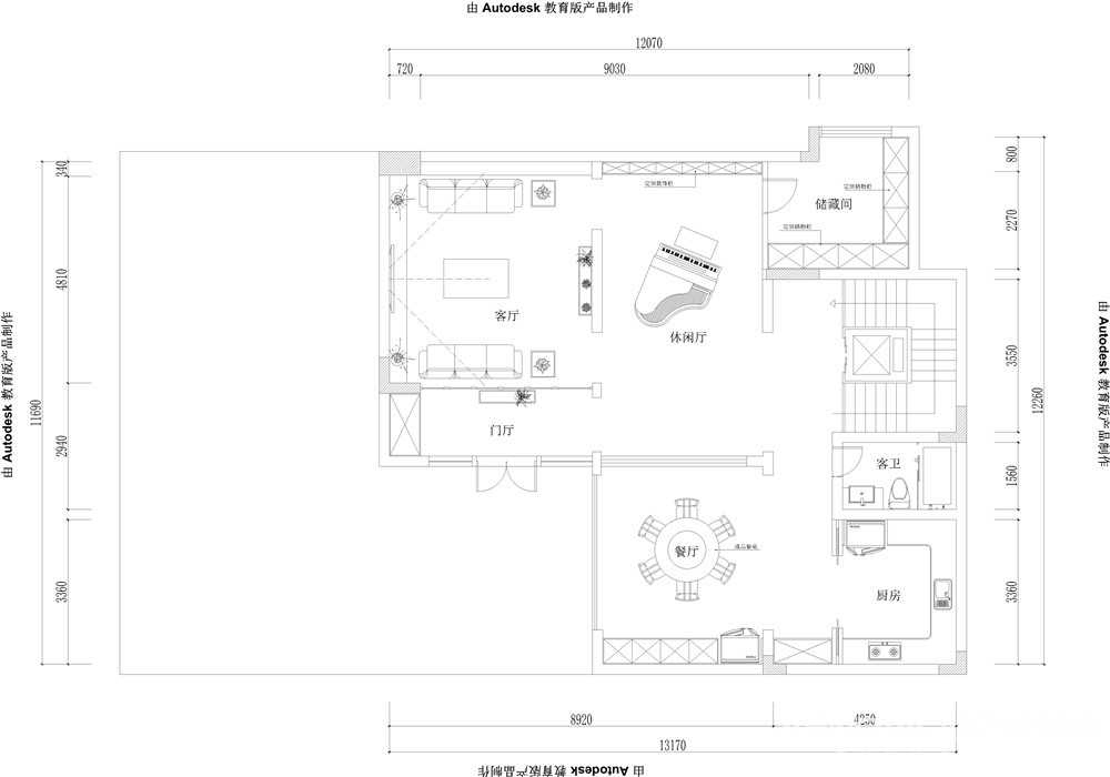
户型图

客厅






餐厅

卧室





京公安网备11010502040911