010-84934479
扫码快速拨号 >
扫码快速拨号

200㎡平层新中式风格黄金山水郡

发布时间: 2018年05月13日
小区:黄金山水郡 面积:200㎡ 户型:平层 风格:新中式风格
设计说明

整体设计风格定位为新中式风格,在考虑视觉因素和空间因素的基础上,将文化脉络贯穿整个设计布局,形成一个文化线索和空间线索互相交互作用的独特的人文空间,拥有浓厚的文化底蕴,让人在视觉和心理上产生共鸣。朴实精致的设计风格,整洁大气的空间布局,和谐的色彩,细腻的工法,干净利落的线条,优雅的中国元素,现代的精准气息,实木中式沙发、单椅和圆几,哑光黑五金落地灯,木纹厚地毯,中式元素与现代材质的巧妙融合,让古雅与简约在同一个时空里浪漫邂逅;将传统生活理念以符合现代生活的专业设计手法铺陈于整个居住空间之中。

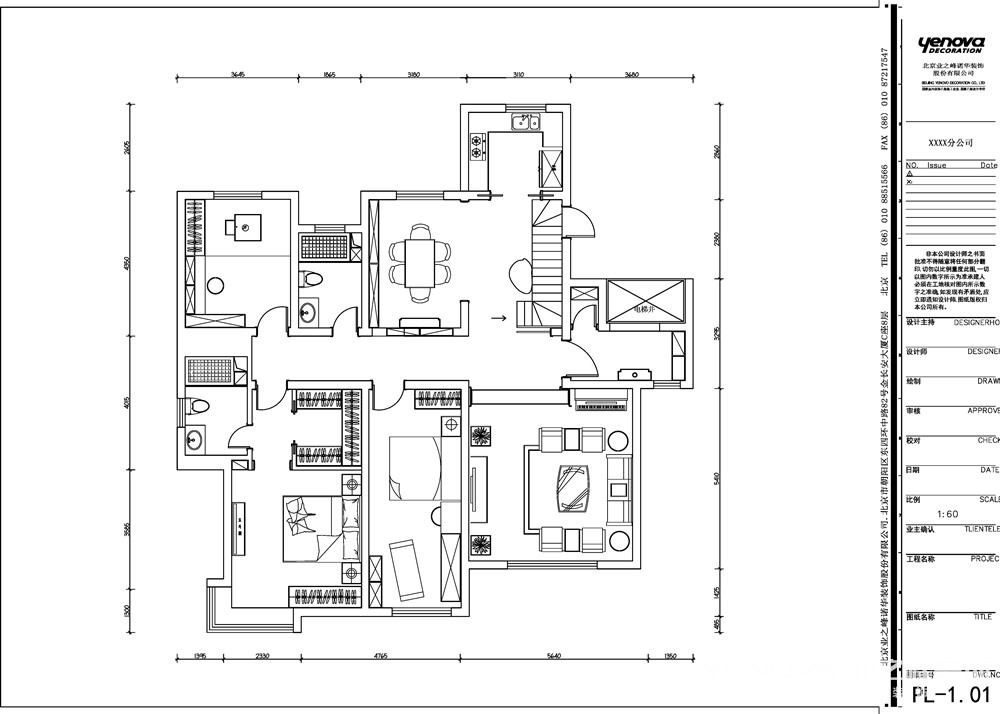
户型图
餐厅
玄关
客厅
卧室
本案设计师
业之峰专业设计师
我家装成这样多少钱?
相关案例推荐
报价计算器
免费量房
免费设计
回到顶部