320㎡别墅美式风格遂宁大院
                  发布时间:
                  2018年03月09日
                
 小区:遂宁大院 面积:320㎡ 户型:别墅 风格:美式风格
设计说明
 成都业之峰装饰设计案例:本案为现代美式风格,以自然色调为主,纯纸浆质地的单色壁纸,仿旧漆,式样简约的家具,别致的小饰品,现代的抽象油画,一一体现了随意的生活方式。
摒弃了繁琐和奢华,并将不同风格中的优秀元素汇集融合,以舒适机能为导向,强调“回归自然”,使居家变得更加轻松、舒适。突出了生活的舒适和自由,不论是麻质的布艺家具,还是带有岁月沧桑的配饰,都散发着放松.自然.清新的色彩。客户三口之家男主人是广告公司负责人希望有一种舒适休闲又不失贵气的居住环境。
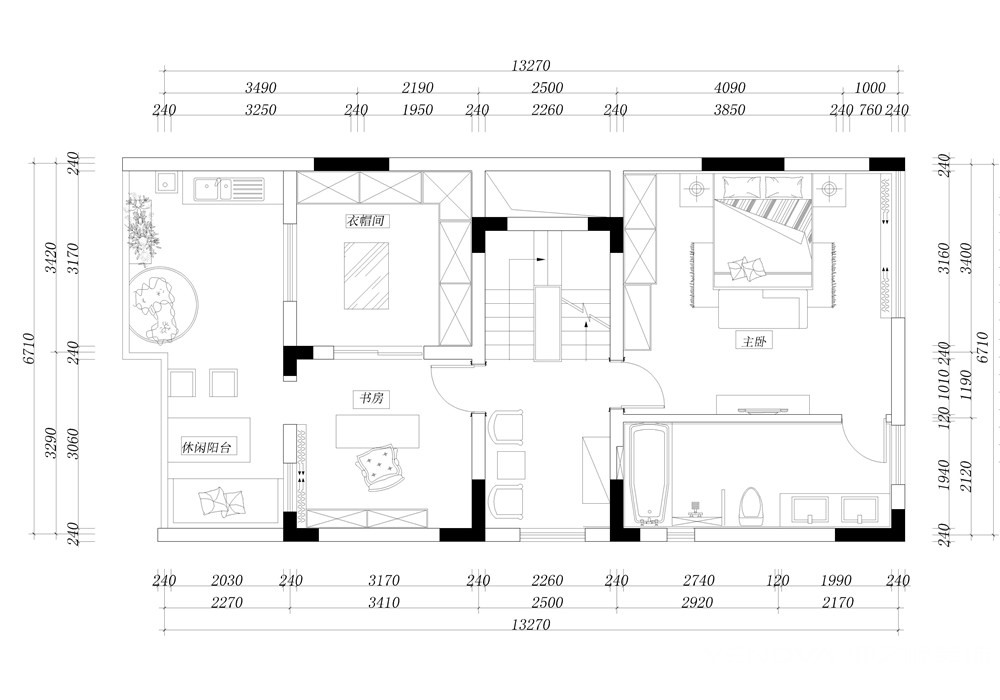
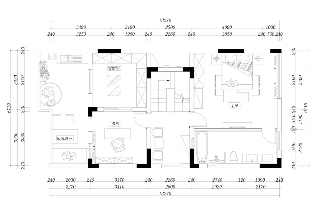
户型图
 
客厅
 



卧室
 

 
 


 京公安网备11010502040911
京公安网备11010502040911