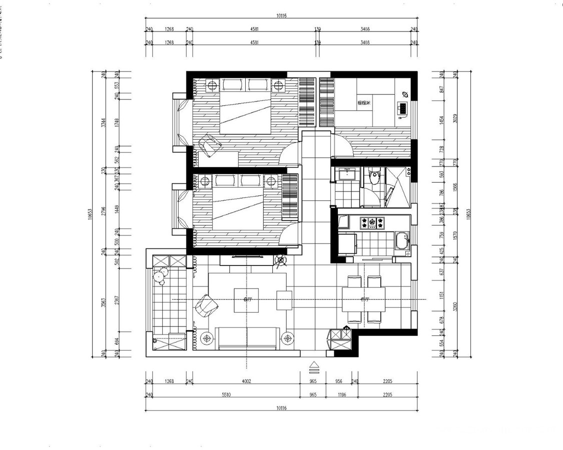
120㎡三居北欧风格中垠雅苑
发布时间:
2018年02月07日
小区:中垠雅苑 面积:120㎡ 户型:三居 风格:北欧风格
设计说明
本案业主对设计亦有自己独特的见解,喜欢时尚摩登的风格,尤其偏爱闪闪的柠檬黄色,通过和客户的沟通和交流,最终定稿整体为卡其色。追求潮流的同时又想要家中保持温馨的感觉。
为了满足客户想要的时尚摩登感,设计师在现代风格中搭入一些木质材质进去,使整体色调更显温馨客厅




京公安网备11010502040911