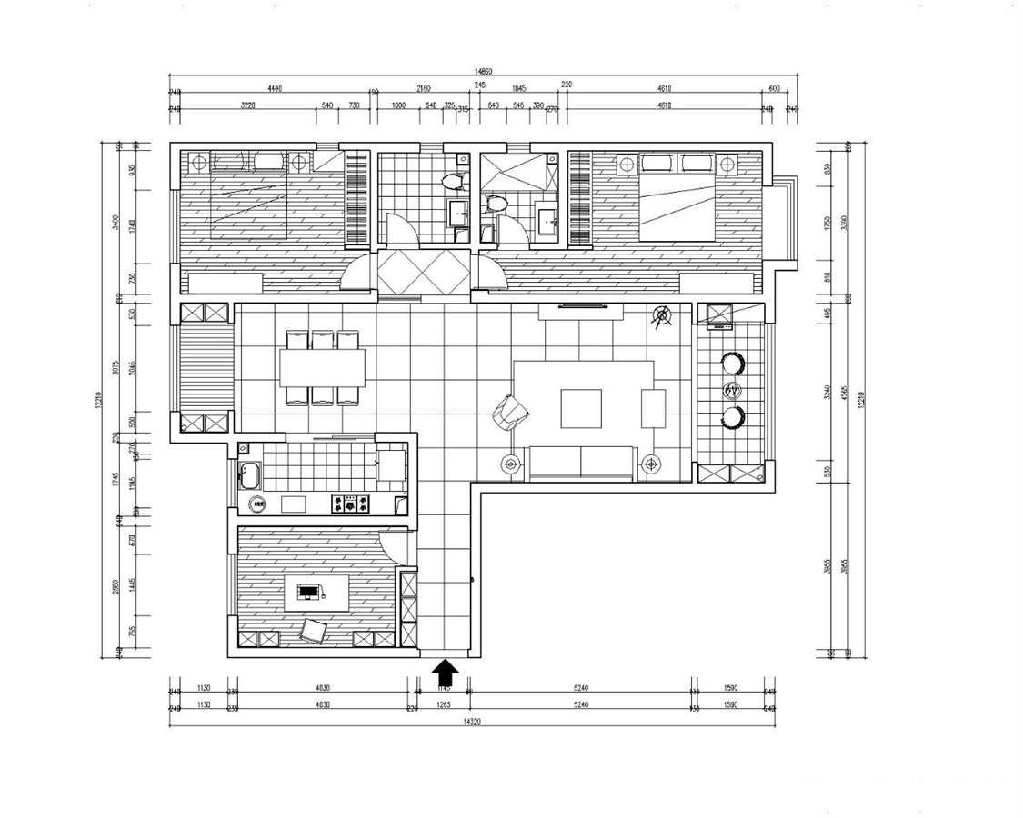
140㎡三居新中式风格西蒋峪
发布时间:
2018年02月07日
小区:西蒋峪 面积:140㎡ 户型:三居 风格:新中式风格
设计说明
大面积的浅灰色背景结合沉稳的胡桃木色,黑白灰过渡的肌理画成为入户空间的焦点,使得原本简洁干净的室内空间,瞬间与艺术氛围相结合,这样的一个中性配色,呈现出“淡定、内敛、平衡”的柔和美感。精确的设计语言及利落的表现手法诠释了这套现代作品,空间调性大气稳重,每面墙面所涉及的材质都是从地面直通到顶面, 包括灰洞石、胡桃木、钢板等,并通过材质原有的肌理、质感及色彩,来丰富空间视觉的层次变化,局部选用了橘、蓝来点亮空间,并细腻地刻画了空间私隐和宁静,
客厅












京公安网备11010502040911