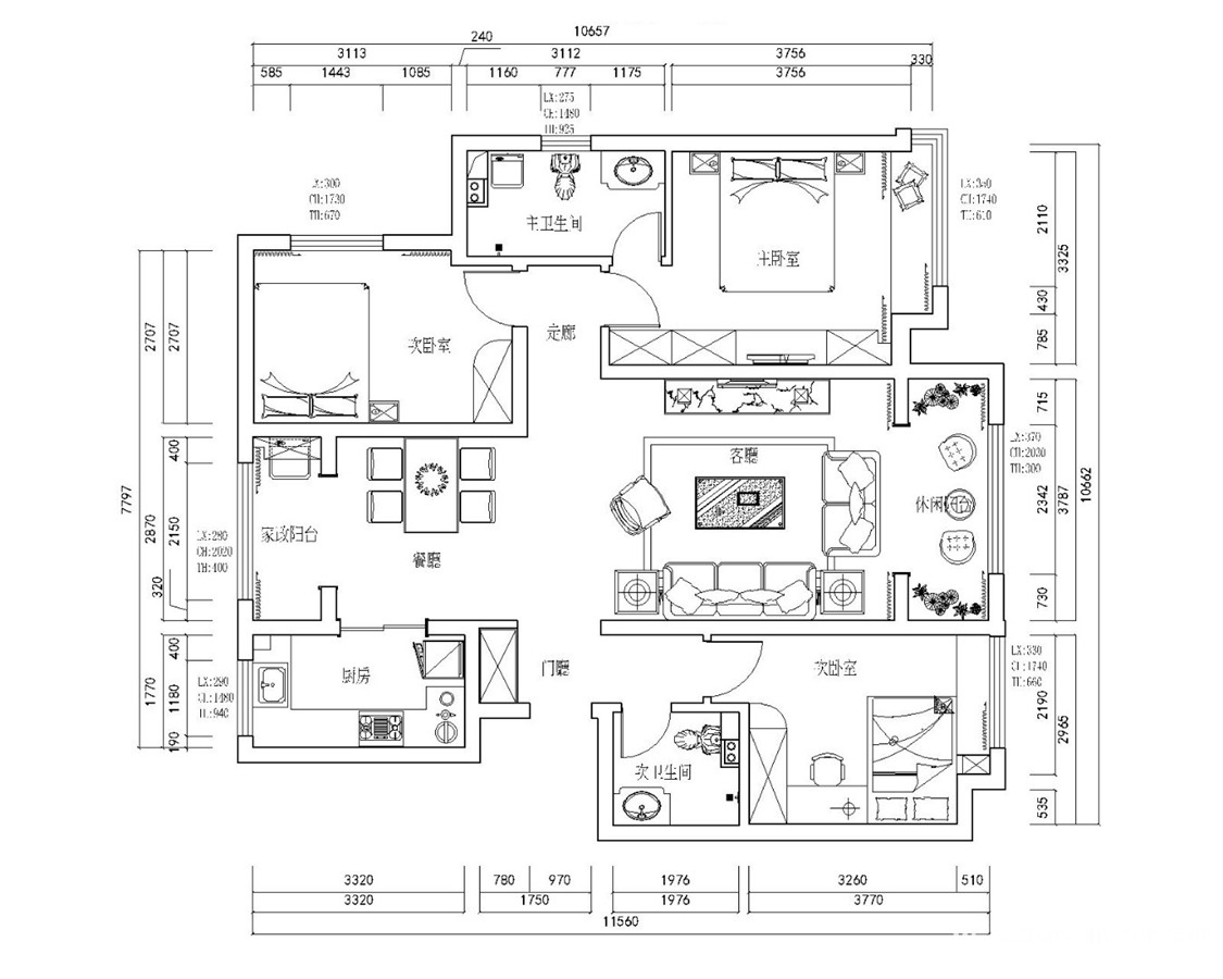
132㎡三居现代简约风格保利花园
发布时间:
2018年01月23日
小区:保利花园 面积:132㎡ 户型:三居 风格:现代简约风格
设计说明
我们很难拒绝这样一种生活:伴随着斑斓和熙的晚霞,端着波尔多的美酒,眺望窗外,身后室内飘出的是华彩的灯光和家人的细语。
客厅










我们很难拒绝这样一种生活:伴随着斑斓和熙的晚霞,端着波尔多的美酒,眺望窗外,身后室内飘出的是华彩的灯光和家人的细语。









