170㎡复式美式风格林隐天下
发布时间:
2018年01月23日
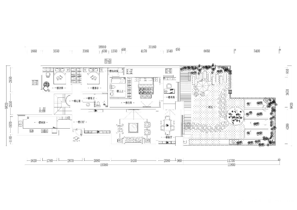
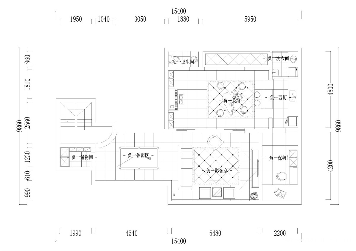
小区:林隐天下 面积:170㎡ 户型:复式 风格:美式风格
设计说明
本案的设计风格为美式,营造典雅、自然、高贵的气质、浪漫的情调是本案的主题。
简约、质朴的设计风格是众多人群所喜爱的,生活在繁杂多变的世界里已是烦扰不休,而简单、自然的生活空间却能让人身心舒畅,感到宁静和安逸;藉着室内空间的解构和重组,便可以满足我们对悠然自得的生活的向往和追求,让我们在纷扰的现实生活中找到平衡,缔造出一个令人心弛神往的写意空间。
室内多采用带有图案的壁纸、地毯、窗帘、及装饰画,体现华丽的风格。家具门窗多漆为深色,画框的线条部位装饰为线条或金边,在造型设计上既要突出凹凸感,又要有优美的弧线。
户型图

卧室

楼梯


客厅







休闲区






玄关

阳台





京公安网备11010502040911