210㎡平层美式风格雅居乐御宾府
发布时间:
2018年01月21日
小区:雅居乐御宾府 面积:210㎡ 户型:平层 风格:美式风格
设计说明
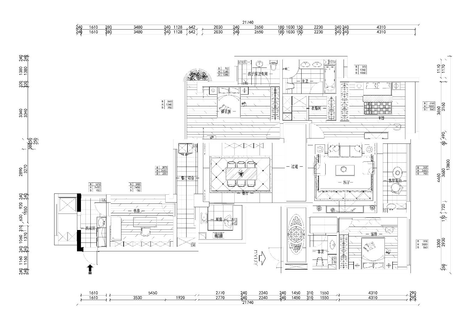
本案客厅的设计典雅高贵,视线正中经过细心雕琢的白色拼花设计一下子抓住了人的眼球,彰显古典与现代艺术的完美结合,其流光溢彩、变幻瑰丽,是东方人的精致、细腻、含蓄的体现。整个空间在色调搭配上给人一种雅致而又灵动之感。它的水平线条以交错的音乐节奏般的韵律,两边墙面上细长比例明显的护墙板显现,呈现出一种沉静的诗意品质。而沙发墙和电视墙制作的木质护墙板,倒也全无违和感,反倒给整个空间带来一种混搭的自然美。赖特认为美来源于自然,他很善于利用材料和装饰取得与周围环境的内在联系,更强调建筑物的设计要尊重天然环境。空间中不同区域利用家具进行软分区,既户型图 
餐厅

客厅




卧室





京公安网备11010502040911