225㎡平层简欧风格锦绣河山
发布时间:
2017年12月22日
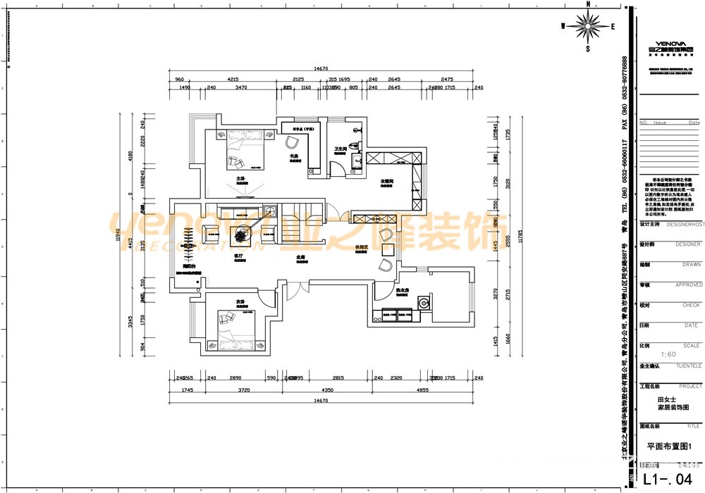
小区:锦绣河山 面积:225㎡ 户型:平层 风格:简欧风格
设计说明
Ø 本案的设计风格为简欧,营造优雅、自然、宁静的气质,简单舒适的情调是本案的主题。
Ø 将空间重新规划,把小连接成大,将局部连接,统一规划又各自独立,从整体到局部、从小空间到大空间,将室内中的光线,空气,声音,材质等重新统一规划,合理规划,将空间规范性,人机尺寸合理性,追求空间变化的连续性和形体变化的层感。
户型图

客厅


餐厅

厨房

休闲区


卧室





京公安网备11010502040911