127㎡三居简欧风格青特赫山
发布时间:
2017年12月22日
小区:青特赫山 面积:127㎡ 户型:三居 风格:简欧风格
设计说明
客户为年轻小夫妻,有一周岁宝宝,喜欢简单的欧式造型,对色彩的感觉要清新大气。整体要求简单时尚,空间敞亮。尽可能的在原有基础上使每个空间展示出空间感。简单的造型设计和色彩搭配在保留空间感的基础上带来丝许灵动。简欧风格的核心是去繁就简,留下简单的线条和几何图案。简欧风格的室内设计打破以往欧式深沉的色彩,大量使用的白色调,把欧式风格设计融入现代设计中浑然一体家居风格,白色调时尚温馨不突兀,客厅的白色墙面与白色地毯散发出的是淡雅清新的现代简欧味道,时尚的白色调沙发与装饰品的摆放,让整个客厅营造出时尚、高贵、轻松、愉悦的视觉感空间,没有任何的花哨装饰,地窗上有轻柔的纱幔,将那凡世的喧嚣抵挡在外,给人的感觉是那样的宁静动人,也让客厅增添了大气感,营造出一个朴实之中的时尚简欧家居设计。
简欧风格的室内设计打破以往欧式深沉的色彩,大量使用的白色调,把欧式风格设计融入现代设计中浑然一体家居风格。白色调时尚温馨不突兀,客厅的白色墙面发出的是淡雅清新的现代简欧味道,时尚的米白色调沙发与电视背景墙的呼应,让整个客厅营造出时尚、高贵、轻松、愉悦的视觉感空间,营造出一个朴实之中的时尚简欧家居设计。
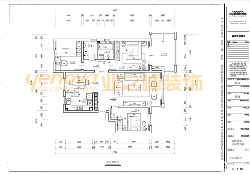
户型图

卧室


客厅


餐厅





京公安网备11010502040911