137㎡三居简欧风格金茂外滩
发布时间:
2017年12月21日
小区:金茂外滩 面积:137㎡ 户型:三居 风格:简欧风格
设计说明
欧式风格兼备豪华、舒适、优雅、浪漫的特点,越来越受广大群众喜爱。本案通过多样的线条与造型的简化,精益求精的细节处理,以及融入现代欧式的生活元素,整体空间充分表现出一种浪漫与惬意的生活品味。简化过的欧式格调,以低调的米白色与线条、方格进行组合,令整个空间明朗而利落,加上部分跳跃色彩与精致饰品,给人一种无以言表的品质感和舒适感。
整个空间以白色为主,营造出一种高贵与素雅的感觉。 欧式的返璞归真与自然相得益彰,以自然之眼观景以自然字眼入境。用简单明快的线条,干净利落的划分出各大功能区,保证了采光的通透。布艺沙发的温柔,金属自感的炫亮,色彩与材质的碰撞,凸显出一室浪漫。通过装饰饰品来丰富空间的色彩与层次,圆型的角几,柔情的沙发,将客厅浪漫氛围提升到极致。放松心情,随窗帘飘动,做一个鸟语花香的梦。
餐厅光线温暖,以金属吊灯营造温馨柔和的氛围,搭配充满气质的餐椅,凸显优雅品味,再以灰色餐巾与墙面装饰画点缀营造了大气又不失清爽的温馨气息。
白色为基础,各种色彩为辅。在空间中用蓝色来点缀,它让家拥有迷人的优雅与灵气,为房子注入一份自然的活力,并将它高贵的气质渲染的淋漓尽致。硬装的线条与软装的搭配的视觉效果,都遵循了如何让使用者能更好的休息,一天的疲惫,都将在这个空间得到最好的缓解。整个空华既奢华又内敛,既灵动由安静。
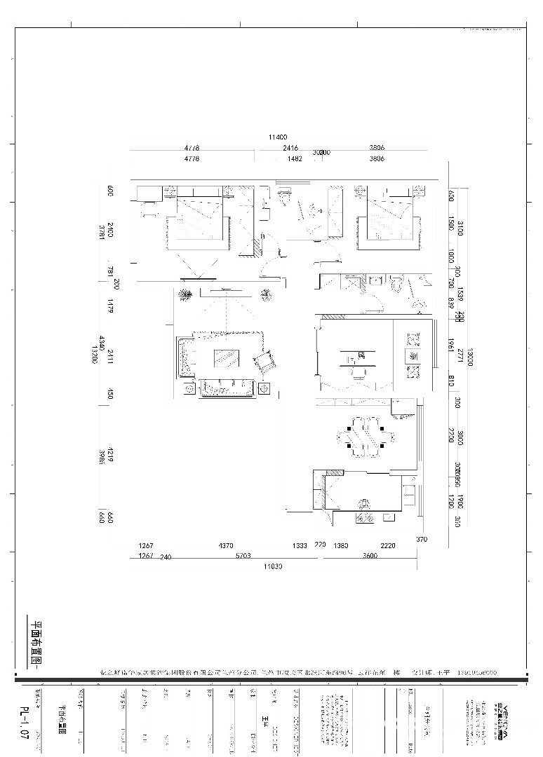
户型图

卧室


客厅









京公安网备11010502040911