175㎡四居简欧风格东方熙龙山院
发布时间:
2017年12月21日
小区:东方熙龙山院 面积:175㎡ 户型:四居 风格:简欧风格
设计说明
本案是三室两厅一厨两卫户型,本案以暖色调为主,风格为欧式风格,通过线条软包、墙纸材质的充分利用,营造一个简单不失奢华的室内空间。整个设计手法以简洁,“以纯为美”的用材理念与欧式的奢华风格浑然天成。大胆而巧妙地利用玻璃、石材、软包、墙纸等材料,相互间既独立又相连,光和影的穿插,加上精美的装饰品与艺术挂画的点缀,使整个空间的设计浑然一体,让人觉得温暖、柔和、奢华的感觉。
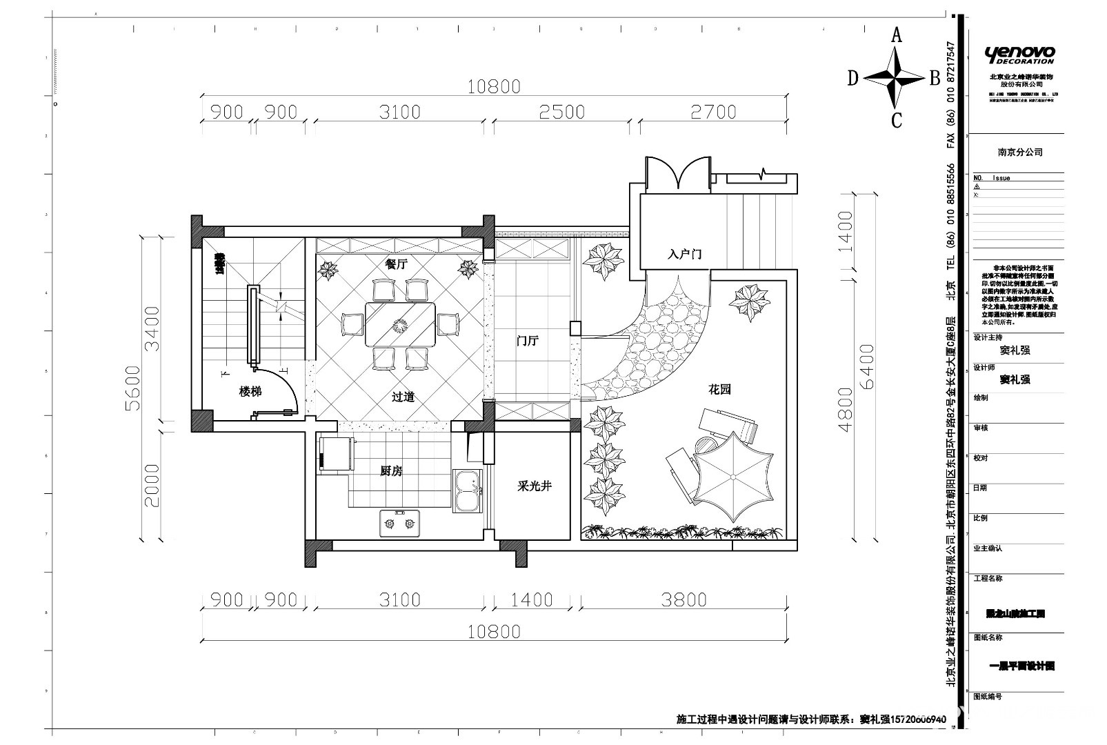
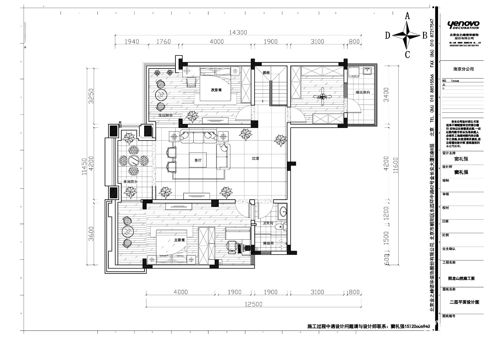
户型图

客厅



餐厅

卧室





京公安网备11010502040911