180㎡复式美式风格枫林九溪
发布时间:
2017年12月20日
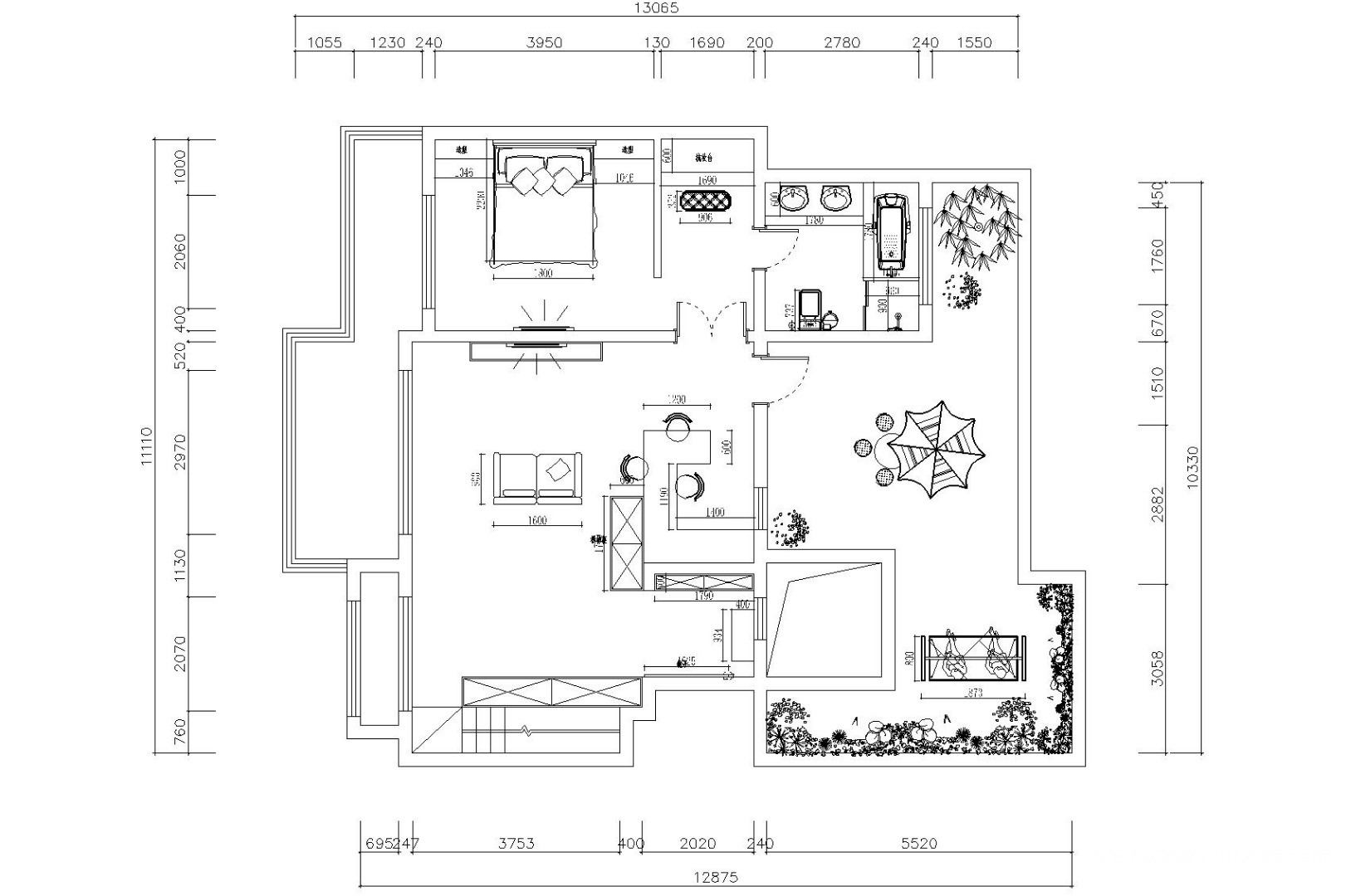
小区:枫林九溪 面积:180㎡ 户型:复式 风格:美式风格
设计说明
本方案为美式风格,客厅白色的吊顶简约美观,木色的墙板给整个空间增加了稳重的协调。开场式的共享空间厨房,黑木色的餐桌大气稳重。卧室作为主人的私密空间,主要以功能性和实用舒适为设计的重点,用温馨手工布艺来装饰,同时在软装上的用色达到统一协调。走进简洁实用的白色空间,整个空间透露出整洁、舒服的气息。配上深色稳重的布艺和椅子,彰显了主人的个性和对舒适生活追求。精美的定制拼花地毯,铺出舒适的柔情,表现了美式风格自由随性的生活习惯。
户型图

休闲区

卫生间

客厅





楼梯

卧室





京公安网备11010502040911