175㎡别墅新中式风格保利西子城
发布时间:
2017年12月19日
小区:保利西子城 面积:175㎡ 户型:别墅 风格:新中式风格
设计说明
本案是保利西子城别墅175平新中式设计效果图,搭建以后200多. 现代人的学习工作都讲求快捷、高效,于是在生活娱乐时就希望把脚步放慢,回归到轻快放松的环境中。越来越多的人对新中式风格亲睐,这就归功于新中式风格特点:新中式风格中的家具:大多是古典家具或者是现代家具与古典家具想结合。家具的颜色:主要是以深色为主,有深厚沉稳的底蕴。装饰造型:主要采用硬朗简洁的直线条,空间具有层次感。既使得中式家具古典、质朴的内涵显现,又符合现代人追求的时尚感、实用性。
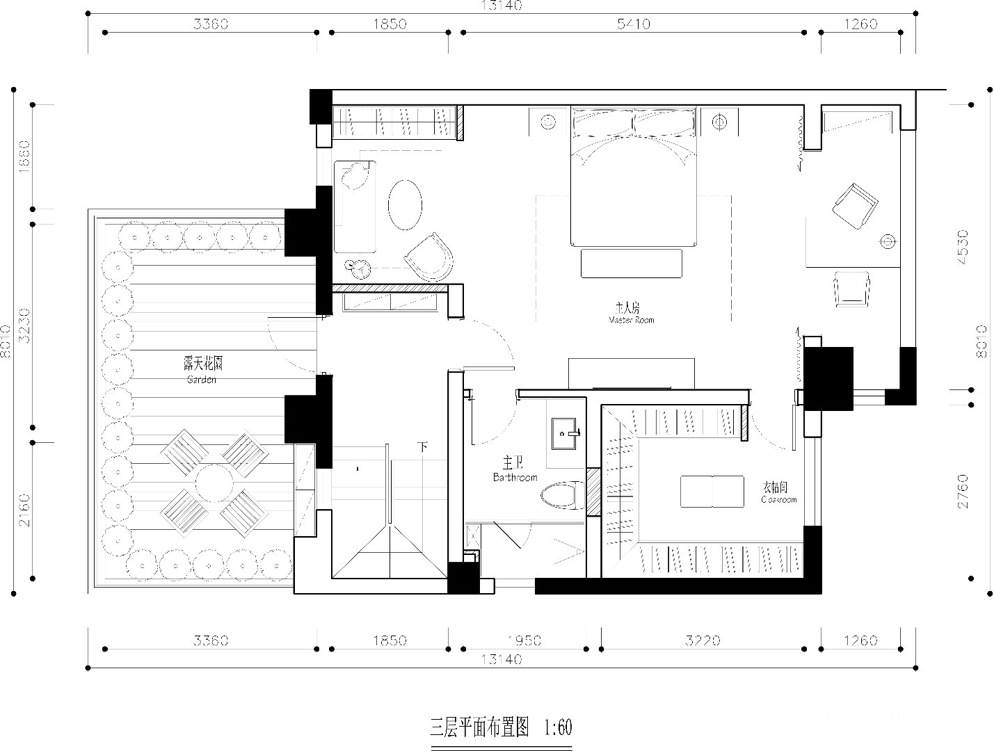
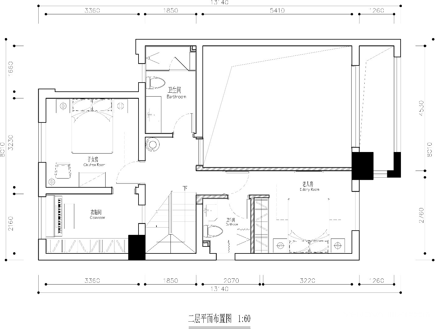
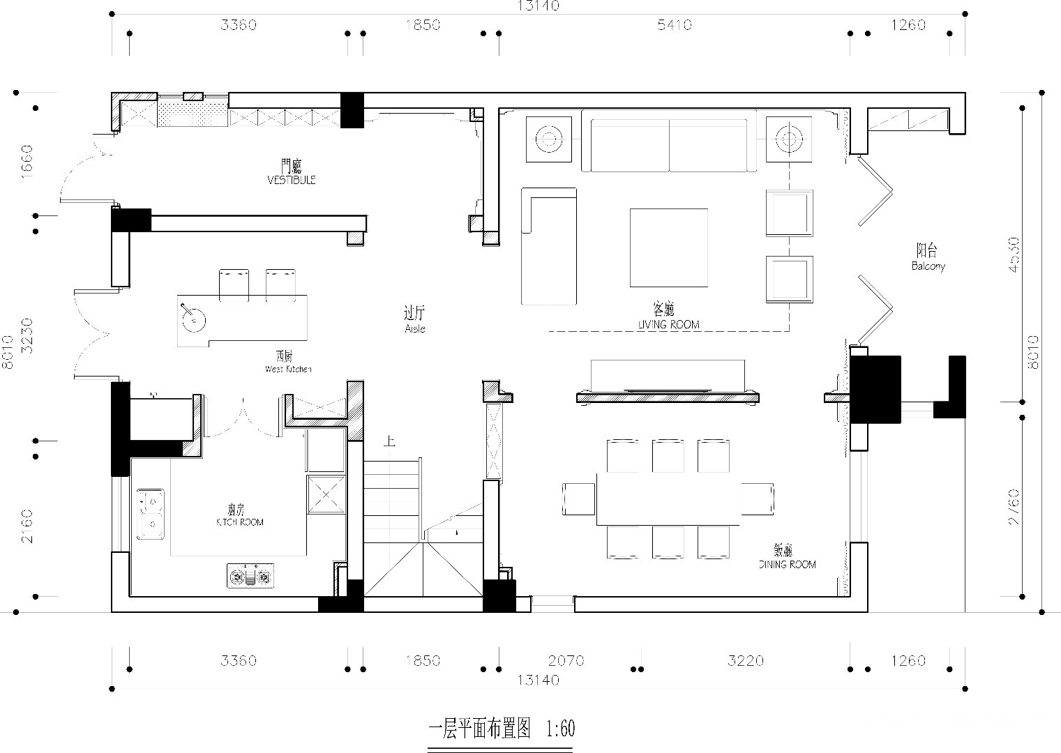
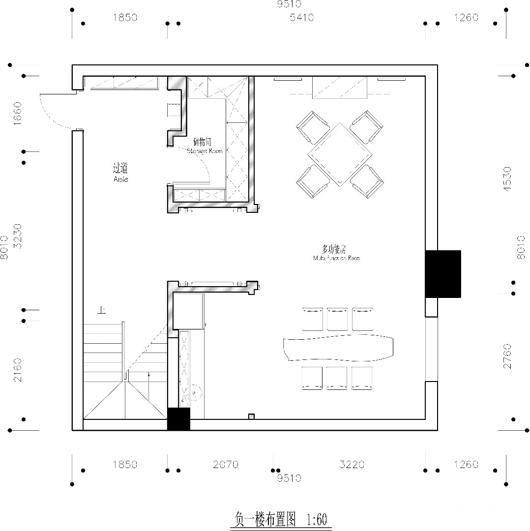
户型图

客厅






卧室

休闲区





京公安网备11010502040911