70㎡二居欧式风格万达东方影都星光岛
发布时间:
2017年09月10日
小区:万达东方影都星光岛 面积:70㎡ 户型:二居 风格:欧式风格
设计说明
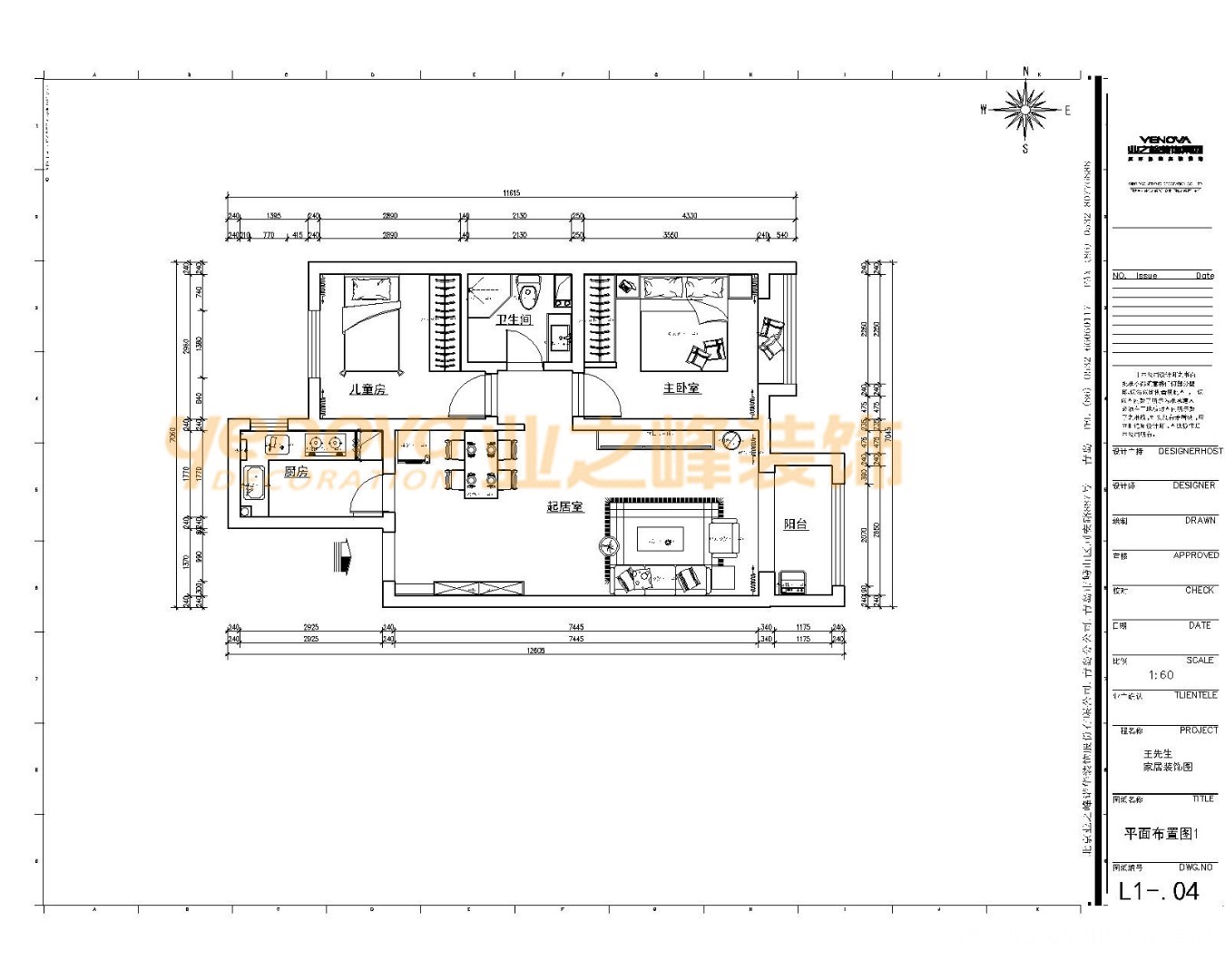
户型优缺点分析:
问题1:主卧走廊过宽,导致主卧衣帽间柜台面积小,次卧阳台使用面积太大,导致次卧室空间小
解决方案:将衣帽间墙体往走廊房型扩建,增加衣帽间空间。缩小次卧室阳台,保证正常使用,增加次卧室空间。
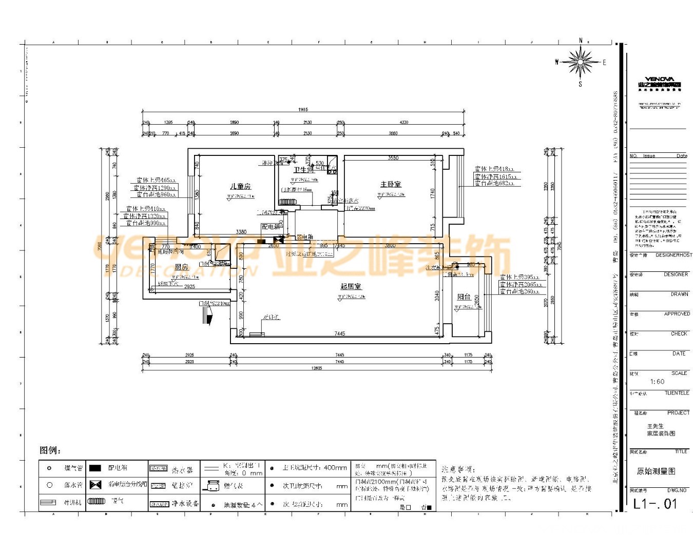
户型图

客厅





卧室






京公安网备11010502040911