280㎡平层欧式风格龙湖香缇国际
发布时间:
2017年09月08日
小区:龙湖香缇国际 面积:280㎡ 户型:平层 风格:欧式风格
设计说明
客餐厅在家具的选择上与硬装修上的欧式细节是相称的,选择深色、带有西方复古图案以及西化造型的图案家具,布艺沙发为主,与大的氛围和基调相和谐。墙面装饰材料选择一些比较有特色的来装饰房间,顶面设水晶灯,和选择一些外形线条柔和光线柔和的灯。规则式的小花园,圆顶的凉亭以及木质座椅和碎石拼都无不体现着欧式的根源。
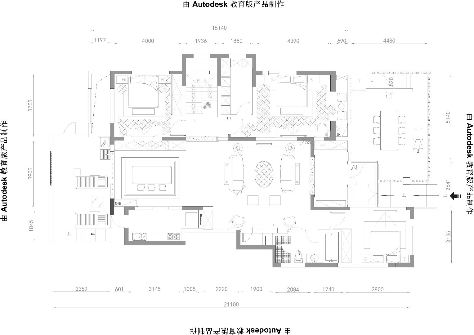
户型图

餐厅

客厅


休闲区



厨房





京公安网备11010502040911