169㎡平层简欧风格晓港名城
发布时间:
2017年09月08日
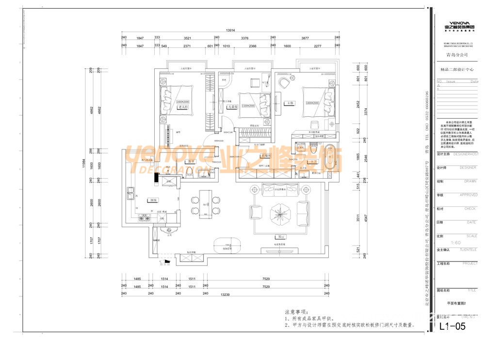
小区:晓港名城 面积:169㎡ 户型:平层 风格:简欧风格
设计说明
人生就是旅途,不管我们漂到哪,最终还是会回到温暖的地方——家。
任时光流转,唯有尊贵与浪漫恒久相随,历久弥新。本案设计以高贵浪漫的欧洲贵族情怀,营造出典雅臻美、优雅大气的居家氛围。在这场视觉盛宴中,感受家的卓尔不凡,高贵出众。
户型图

客厅



餐厅

儿童房

卧室





京公安网备11010502040911