160㎡别墅现代简约风格恒大金碧天下
发布时间:
2017年07月25日
小区:恒大金碧天下 面积:160㎡ 户型:别墅 风格:现代简约风格
设计说明
本方案在整体设计上主要是以现代美术的装饰手法,现代美式风格注重简洁明快,没有过多繁重的装饰,主要体现的是材质本身的自然美,家具上多以深色复古家具为主,给人一种厚重,沉稳的视觉感受,墙面上我们主要以淡黄色乳胶漆来突显空间的舒适温馨,顶面设计上采用了简单的跌级吊顶和石膏线的结合,在保留房间自身层高基础上,更加突出了他房间自身的优势,层次更加分明,给人一种看似简单却又不失华丽的错觉。地面上采用了大面积深色仿古砖给人一种看似就像乡间小道设计更加贴近自然。以上就是我们团队关于本作品设计说明的介绍,喜欢中式带现代中式式风格的朋友们赶快收藏起来吧,装修时可以参考参考。
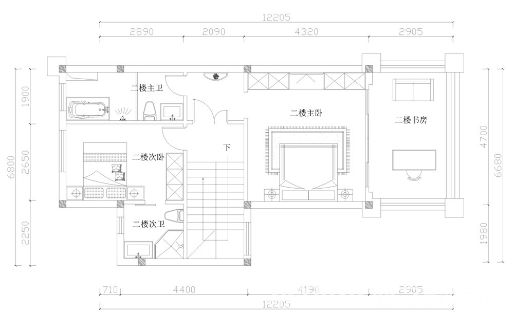
户型图

卧室


客厅







京公安网备11010502040911