90㎡三居北欧风格德商华府天骄
发布时间:
2017年07月23日
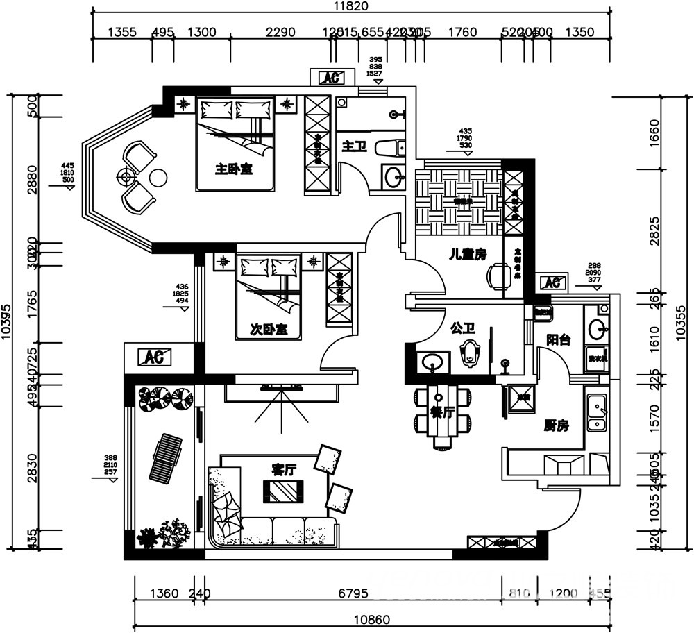
小区:德商华府天骄 面积:90㎡ 户型:三居 风格:北欧风格
设计说明
设计说明:本案户型为90㎡平层结构,风格定为北欧风格,客户有良好的生活习惯,对该户型要求较高,所以将此户型定为三室两厅两卫的结构,本案以浅蓝色为主色调,使整个空间看起来清爽简洁干净,给人一种舒适感。
户型图

餐厅

卫生间

卧室

客厅





京公安网备11010502040911