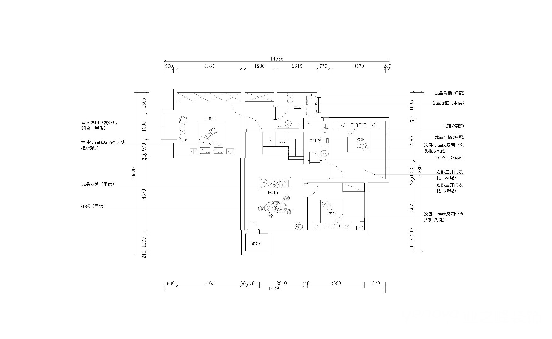
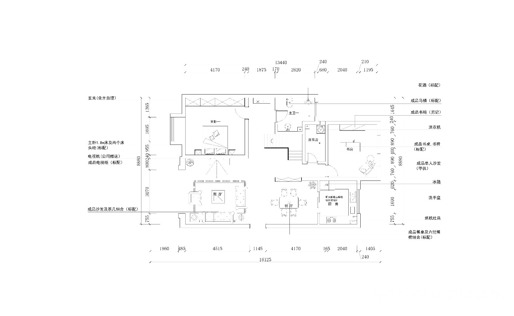
260㎡三居欧式风格汇通太古城
新古典风格是改良的一种古典主义的风格,欧洲文化丰富的艺术底蕴,开放,创新的设计思想及其尊贵的姿容,一直以来颇受人喜欢与追求。新古典风格从简单到繁杂、从整体到局部,精雕细琢,镶花刻金都给人一丝不苟的印象。一方面保留了材质、色彩的大致风格,仍然可以很强烈地感受传统的历史痕迹与浑厚的文化底蕴,同时又摒弃了过于复杂的肌理和装饰,简化了线条。
客户为年轻夫妇。男主人非常的绅士,喜欢欧洲文化。女主人是为教师对家的要求是大气美观。彰显品质。
客厅布置紧凑。电视柜。茶几。沙发。边几的摆放都经过了精密的考量。以达到不浪费一寸空间的效果。整体布局有条有理,给人清爽的视觉感受。客厅以白色为主,清新高雅,少量色彩糅合。吊顶及墙面上精巧的石膏线体现出了洛可可式的华丽精巧,客厅墙面,沙发,地毯,电视墙背景与沙发背景墙全部接近米色。温和。给人舒适放松的感觉。
餐厅延续了客厅的装修手法,白色护墙板搭配深色的家具。用餐环境衬托的精巧雅致,让日常的每一餐都变成一种享受。秉承了客厅的文化气息。造型唯美的哦是餐桌及家具。充满自然气息的绿植为空间增添鲜明的色彩。给空间增加延伸感和层次感。
餐厅延续了客厅的装修手法,白色护墙板搭配深色的家具。用餐环境衬托的精巧雅致,让日常的每一餐都变成一种享受。秉承了客厅的文化气息。造型唯美的哦是餐桌及家具。充满自然气息的绿植为空间增添鲜明的色彩。给空间增加延伸感和层次感。
过道设计,主要是在于对区域的一个划分,在造型上更多的是给空间增加一些美感,起到一个延伸的作用,更多的突出走廊尽头的玄关柜的装饰作用。











京公安网备11010502040911