349㎡别墅欧式风格宁江大院
发布时间:
2017年07月21日
小区:宁江大院 面积:349㎡ 户型:别墅 风格:欧式风格
设计说明
设计说明:
本方案在整体设计上 此房面积349.5平米平层,客户对于欧式设计风格尤为喜欢。欧式在设计上讲精益求精,给人一种金碧辉煌气息。我们把一些精细的后期配饰融入设计风格之中,充分体现设计师和业主所追求的一种高品质、舒适的生活氛围。在本套设计中我们在墙面上主要采用土黄色的淡花纹机理墙纸,凸显出了和色深木质墙裙,并在客厅电
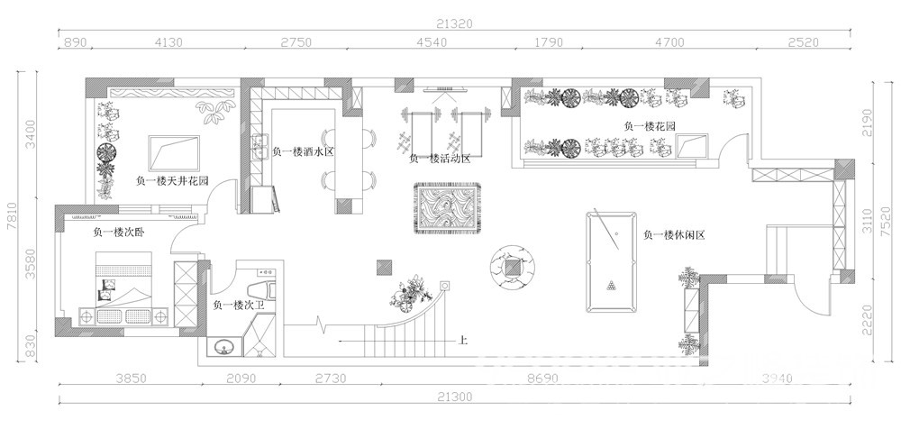
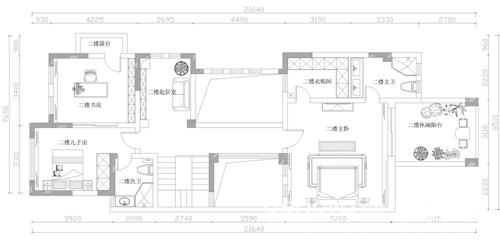
户型图

客厅




卧室


书房

休闲区

餐厅





京公安网备11010502040911