240㎡别墅简欧风格碧桂园
发布时间:
2017年07月15日
小区:碧桂园 面积:240㎡ 户型:别墅 风格:简欧风格
设计说明
简欧风格崇尚室内的大气奢华,追求一种高质量的生活品质。造型丰富一些,颜色多选用明亮大气的颜色,烘托出整个室内的质感。
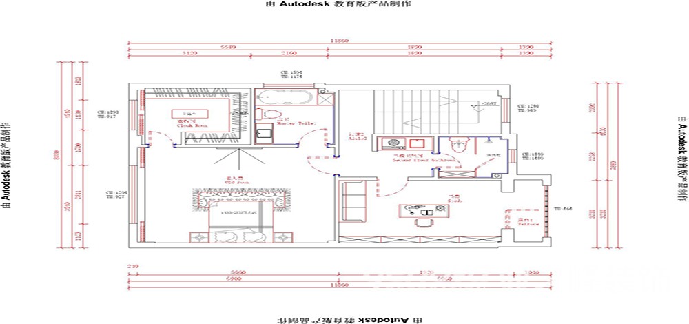
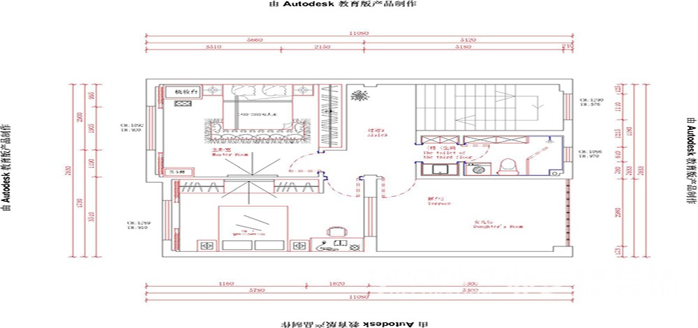
户型图

卧室



餐厅

客厅




休闲区

书房

简欧风格崇尚室内的大气奢华,追求一种高质量的生活品质。造型丰富一些,颜色多选用明亮大气的颜色,烘托出整个室内的质感。










