150㎡四居美式风格长城半岛城邦
发布时间:
2017年06月23日
小区:长城半岛城邦 面积:150㎡ 户型:四居 风格:美式风格
设计说明
本案采用美式设计风格,利用对称的设计手法。对原有不合理的布局进行调整,在体会典型美式感受的同时让业主感觉使用舒适。
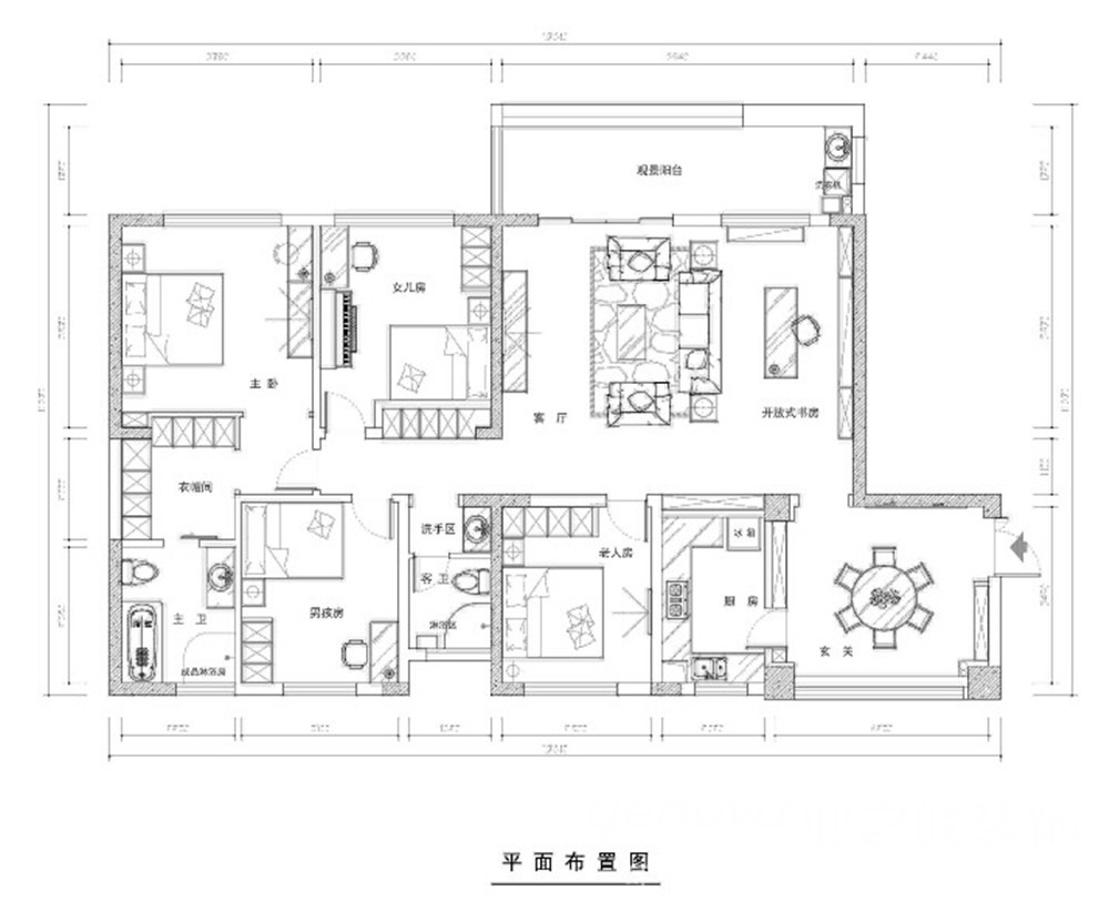
户型图

客厅


卧室

餐厅

本案采用美式设计风格,利用对称的设计手法。对原有不合理的布局进行调整,在体会典型美式感受的同时让业主感觉使用舒适。




