375㎡新中式风格雅居乐别墅
发布时间:
2017年06月22日
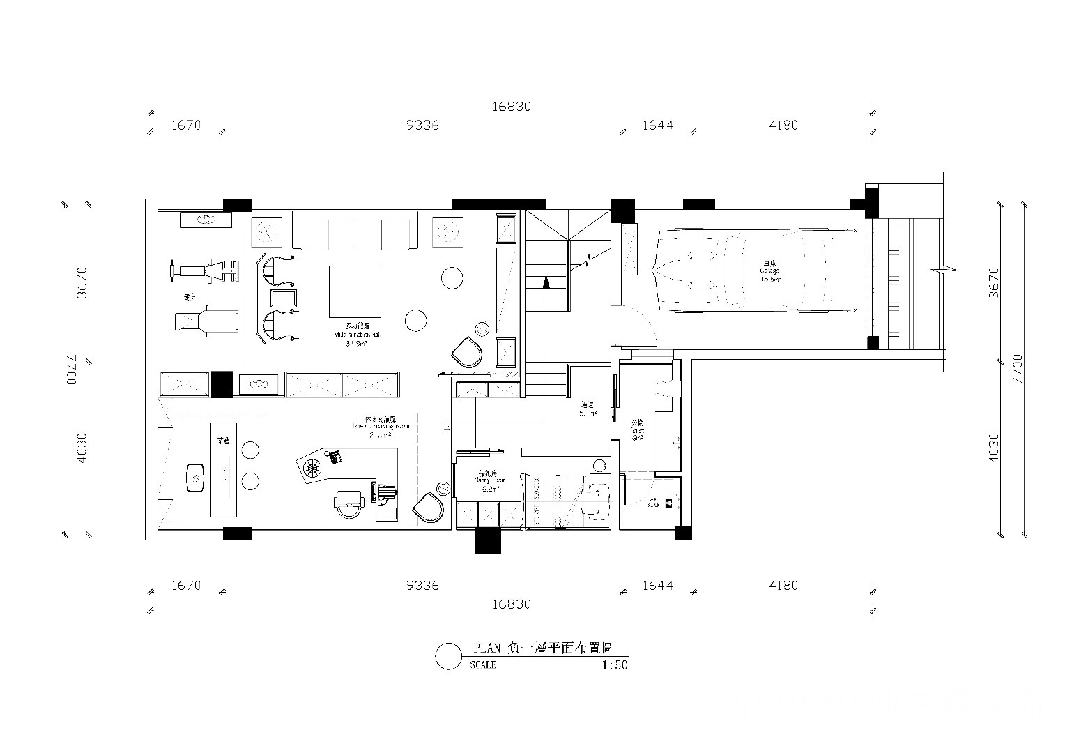
小区:雅居乐别墅 面积:375㎡ 户型: 风格:新中式风格
设计说明
此设计方案的业主是同父母、儿女居住;风格倾向定位为简约中式,居室中所出现的电器皆为紧跟时代潮流的产品,如3D云电视、中央净水系统、中央空调、环绕立体音响等。本案的设计重点是会客空间与餐厅空间互通与交流以及餐厅的挑高空间,从设计手法上采用了从墙面上的线与面的衔接呼应,以及顶面的空间的虚拟划分,达到各功能空间融会贯通的目的。大气、稳重在本案中得到了淋漓尽致的体现。
客厅











京公安网备11010502040911