114㎡三居现代简约风格锦蓉佳苑小区
发布时间:
2017年06月22日
小区:锦蓉佳苑小区 面积:114㎡ 户型:三居 风格:现代简约风格
设计说明
此设计方案的业主三口人,偶有亲朋,可做一主卧一次卧一书房一衣帽间的格局划分;风格倾向定位为京派中式风格,不要冗繁,中国红基调,色彩明快,可配红木、实木家具。居室中所出现的电器皆为紧跟时代潮流的产品,如3D云电视、中央净水系统、中央空调、环绕立体音响等。本案的设计重点是主卧与主卧衣帽间的衔接上,考虑房间面积小空间划分较碎,通过利用软性隔断将主卧与衣帽间结合将空间整合。经典、沉稳在本案中得到了淋漓尽致的体现。
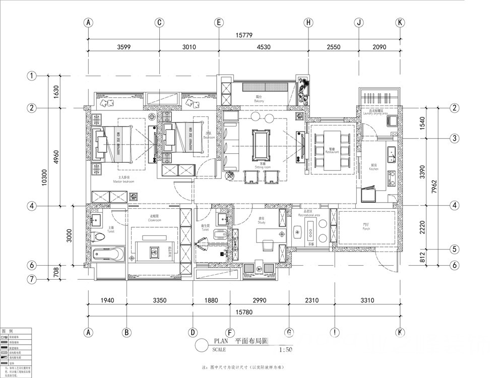
户型图

客厅




卧室





京公安网备11010502040911