360㎡别墅新里派克公馆
发布时间:
2017年06月22日
小区:新里派克公馆 面积:360㎡ 户型:别墅 风格:
设计说明
业主夫妇是70后,均为公司高管,平日工作繁忙,非常喜欢乡村美式给与内心的平静与惬意的放松感。设计中,休闲区与娱乐区均使用大面积的明快色彩,还有贴近自然的文化石砖,力求表现出一种遵守自然、朴素的室内空间气氛。而工作区域书房则用深色为主色调,深色调可以平静内心,在有办公需求时能帮助人们尽快进入工作状态。
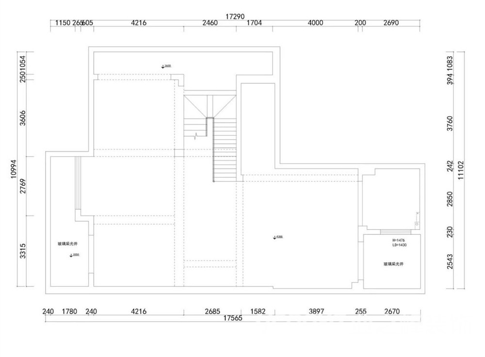
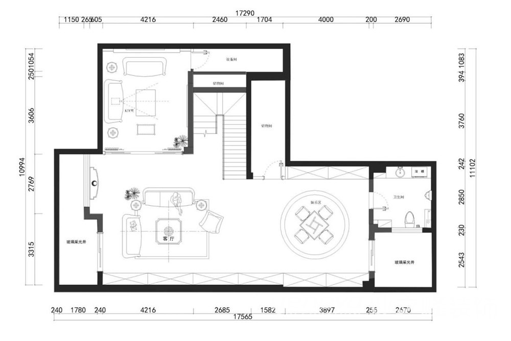
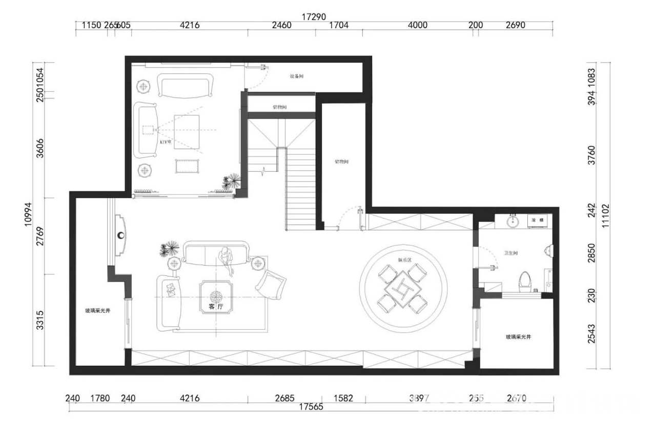
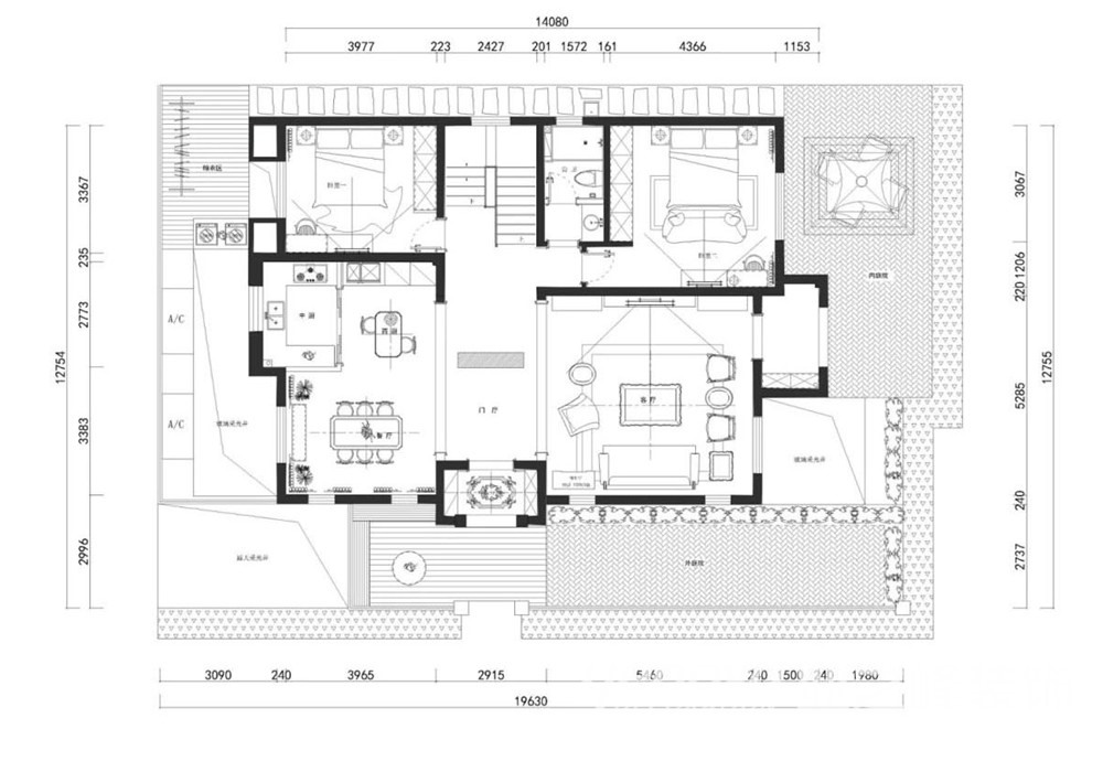
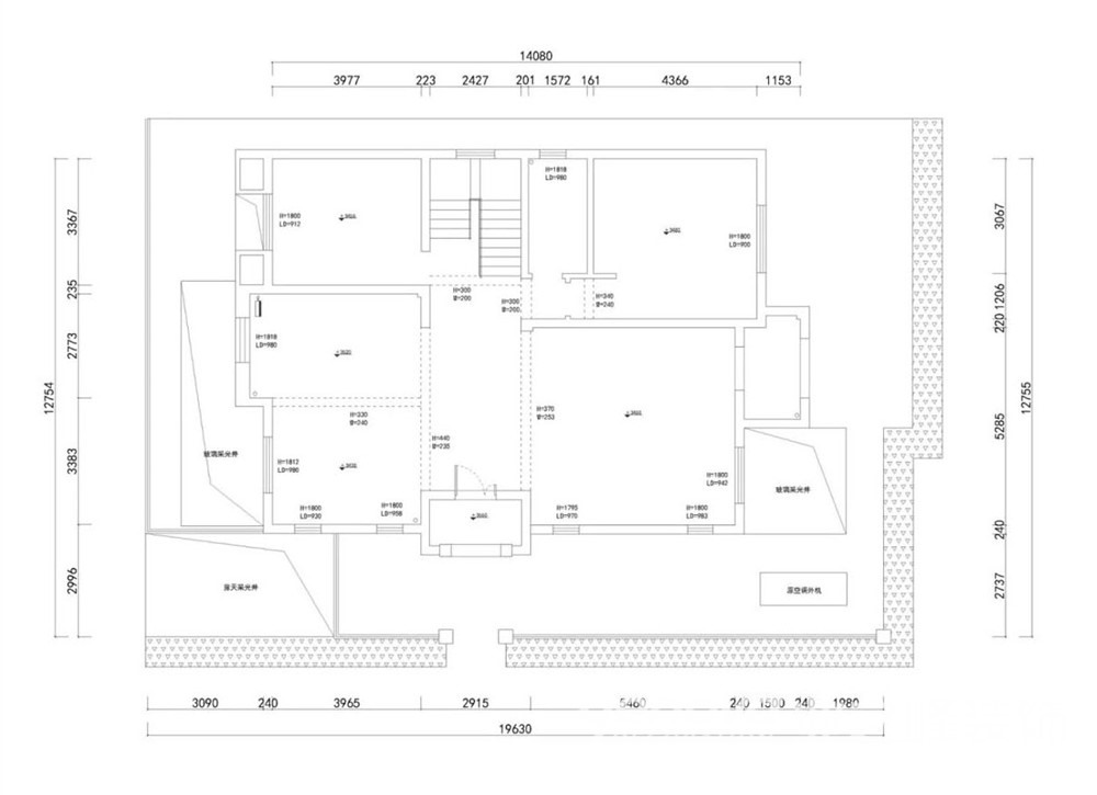
户型图

餐厅

客厅











书房

卧室









京公安网备11010502040911