200㎡混搭风格金房大榕湾
发布时间:
2017年06月22日
小区:金房大榕湾 面积:200㎡ 户型: 风格:混搭风格
设计说明
业主是一对夫妻,男主人做生意,女主人是自由职业者,这是业主的第一套自有住房,买房时想一步到位,所以新风,中央空调,净水,地暖等设备都是全部安装,在家具和电器设备上要求较高,但在整体装修上考虑越简单越好,希望装修能够承受得住时间的考验。所以在整体风格上我们为业主考虑为简约美式,以轻重的实木色来为业主打造出一个轻松休闲,稳重大气的空间陈设,实木的家具最能经得起时间的检验。
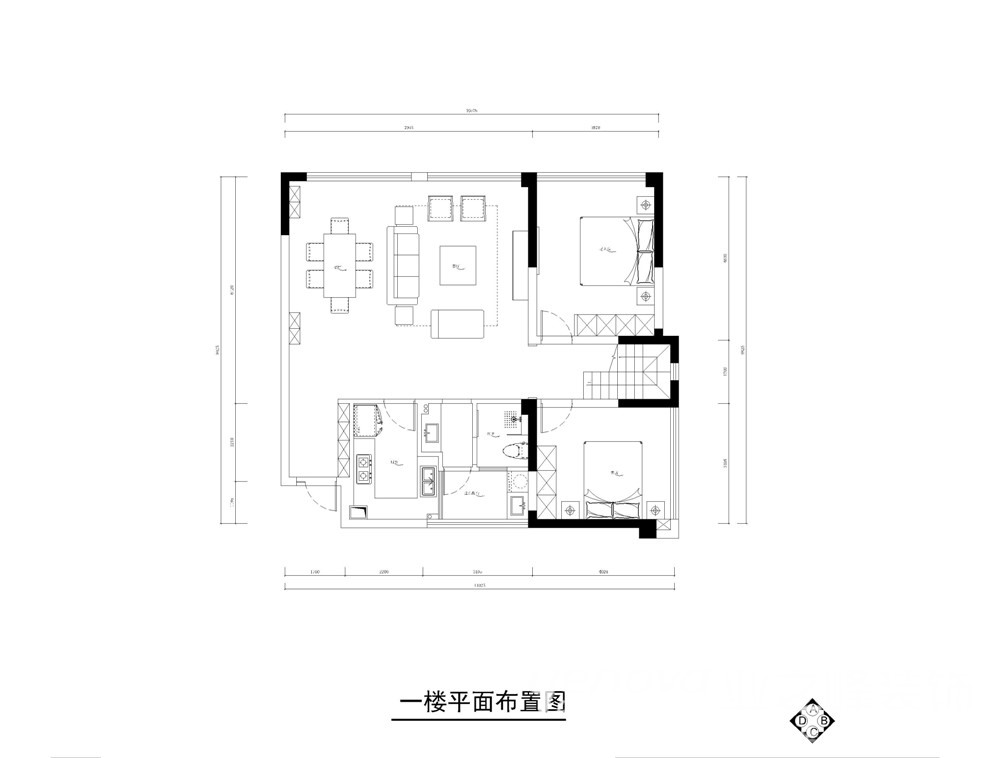
户型图

客厅



餐厅

卧室





京公安网备11010502040911